Übersetzter Text
Urtext
A DOT-ING INGATLANIRODA eladásra kínál újépítésű, amerikai stílusú, földszintes kialakítású, 95 m2 nettó alapterületű, 450 m2-es saját telekkel, 3 szoba+nappalis, jó elosztású, megújuló energiaforrással épülő könnyűszerkezetes IKERHÁZAT.
Az ingatlan Ászáron, Kisbér határvonalán,könnyen megközelíthető, nyugodt, csendes, környezetben található. A Győr ipari park 20 percre,Tata 40 perc autóúttal elérhető. A közelben Ászár-Neszmélyi borvidék tengelye húzódik, több neves borászat kínálja portékáját.
A DOT-ING INGATLAN által kínált IKERHÁZ jellemzői:
A kétlakásos családi lakóház tetőtér beépítés nélküli. Az épület tetőszerkezet formája kontyolt nyeregtető, antracit színű cserépfedéssel fedett. A homlokzata vakolt hőszigetelő rendszerrel ellátott, drapp színű színezéssel, a lábazat színezése sötétebb szürke színű. A ház megjelenését tekintve a környezetében lévő házakhoz hasonló megjelenésű, azokhoz kellőképpen illeszkedik.
A lakórész teherhordó és külső térelhatároló falai könnyűszerkezetes KVH vázszerkezettel készülnek, 62,5 cm-es tengelytávú vázszerkezettel, a készház rendszere szerint. A lakóépület belső teherhordó és térelhatároló falai KVH vázszerkezetűek, 62,5 cm-es tengelytávú vázszerkezettel. A válaszfalak gipszkarton válaszfalak.
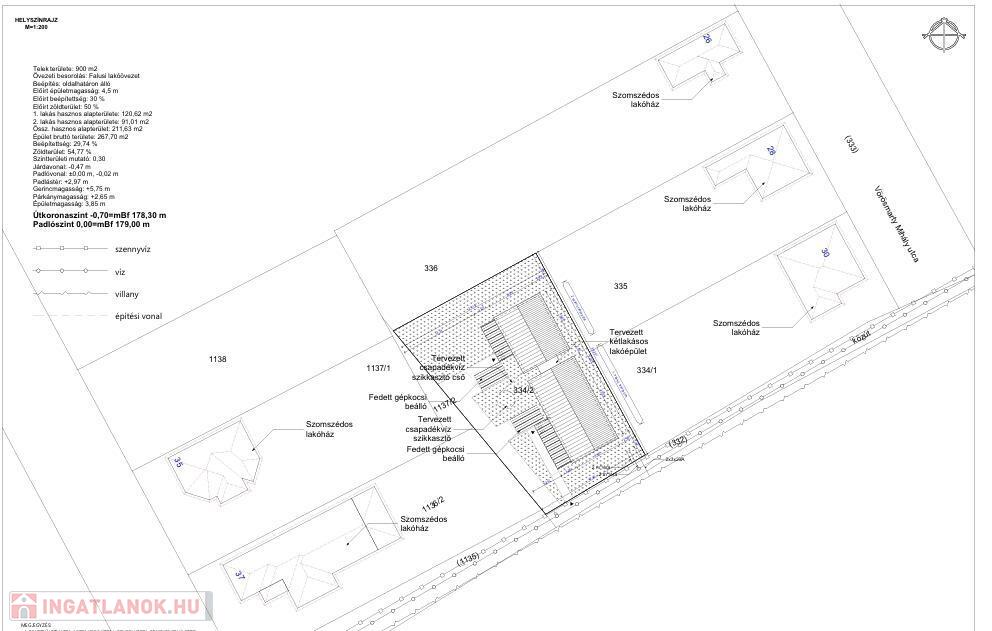
Padló hőszigetelése: Földszinti padlónál 15 cm vtg. NIKECELL lépésálló hőszigetelés.
Homlokzat hőszigetelése: 15 cm homlokzati dryvit rendszerű hőszigetelés
Lábazat Hőszigetelése: 15 cm zártcellás hőszigetelés
Födém hőszigetelése: 30 cm vtg. hőszigetelés.
A külső nyílászárók KÖMMERLING 5 kamrás profilból készülő,fokozott hőszigetelt,3 rétegű üvegezésű műanyag nyílászárók, fehér színben, a bejárati ajtó üvegezett, típus műanyag ajtó. A padlásfeljáró típus szerkezet.A belső ajtók tele dombornyomott, farostlemez ajtók, dekor fólia felülettel, fatokkal.
Az épület fűtését a padlóburkolatok alá elhelyezésre kerülő hőszivattyús padlófűtés biztosítja. Napkollektorok és napelemek elhelyezése az épület legjobban napsütötte tetőfelületén, tetőszerkezetén bármikor megoldható. A ház hűtését klíma biztosítja.
A parkoló egy autóbeálló kialakításával lesz megoldva.
Várható átadás: 2026.07.30.
Részletesebb dokumentáció, információért hívjon bizalommal:Telek Bernadett 06703677606
INGYENES hitelügyintézés előszűréssel, több bank ajánlatából személyre szabottan, valamint teljeskörű lebonyolítás jogi háttérrel irodánknál.
95 quadratmeter
450 quadratmeter
gut
Doppelhaushälfte
n. a.
Hauszentralheizung (mit Kompakt-Wärmezähler)
n. a.
n. a.
neubau
n. a.
n. a.
n. a.
Finden Sie das perfekte Haus, Wohnung, Büro, Garage, Grundstück oder jede andere Art von Immobilien!
Die Immobilien.co.hu ist ein mitglied der Immobilien Gruppe.
Verkäufliche Immobilien in Ungarn - Immobilien.co.hu © 2026 Alle Rechte vorbehalten