Haus kaufen, Budapest III. Bezirk

Startseite » Haus kaufen, Budapest III. Bezirk » Haus kaufen, Budapest III. Bezirk

265 000 000 Ft

€686 706
Inserent Daten

Horváth Zoltán

Neue Nachricht
Die Nachricht hat mindestens 10 Zeichen zu sein.
Beschreibung

Übersetzter Text

Urtext

Megvételre kínálunk a 3. kerület egyik legszebb részén, az Ürömhegyen, egy minimál stílusú, ÖRÖKPANORÁMÁS, dupla garázsos, HÓSZIVATTYÚS, teraszos, erkélyes, 165 nm-es, 5 szobás, dupla komfortos luxus ikerházat. Az ingatlan egy villaparkban épül, ennek megfelelő műszaki tartalommal és kivitelezéssel.

 

AZ ÖRÖKPANORÁMÁS TERASZ ÉS AZ ERKÉLY EGYÜTTES MÉRETE 64 nm.

 

Minőségi alapanyagokból, igényes kivitelezés jellemzi a projektet, ahol a biztonság és a kényelem mellett az energiatakarékosság volt a fő szempont. A ház átgondolt tervezésének köszönhetően kényelmes, otthonos, szellős, ugyanakkor bővelkedik a reprezentatív, elegáns elemekkel. Az ingatlan klímájáról, valamint a használati melegvíz ellátásáról egy modern, energia takarékos, innovatív levegő-víz hőszivattyú gondoskodik H tarifás üzemeltetéssel.

 

A hőmérséklet helyiségenként állítható.

 

A hőszivattyú télen a padlón és a mennyezeten fűt, míg a nyári hónapokban a mennyezeten hűt, így egész évben biztosított a kellemes hőmérséklet. Az ingatlan külső szigetelése Dryvit rendszerrel, valamint prémium három rétegű nyílászáró rendszerrel lett kialakítva. Ennek köszönhetően az ingatlan méretéhez képest a rezsi költségek minimalizálódnak.

 

Természetesen alumínium redőnyök, elektromos autó töltő a garázsban, exkluzív vakolat rendszer, biztonsági ajtó és egyéb extrák kerülnek beépítésre ebbe a nem mindennapi ingatlanba.

 

Az összes közmű külön mérőórákról üzemel.

 

Ennél a beruházásnál most lehetősége van kompromisszumok nélkül egy olyan lakásba költözni, ahol Ön kiválaszthatja a hideg és meleg burkolatokat, szanitereket, valamint az egyéb kiegészítőket a családja legnagyobb megelégedésére, ez által személyre szabva álmai otthonát.

A kulcsra kész ár tartalmazza az elektromos redőnyöket, három rétegű nyílászárókat, riasztó előkészítést, kaputelefon és motoros kapu kiépítést, valamint napelem előkészítést. A gépjárművekkel az ingatlanhoz tartozó garázsban lehet biztonságosan parkolni.  

 

Az ingatlanhoz 305 nm-es privát telek tartozik.

 

A projekt megközelítőleg 3600 nm-es telken helyezkedik el, ahol 4 ikerház, vagyis 8 lakás kerül megépítésre.

A lakások ára az alapterülettől és a telek nagyságától függően változnak: 219 m Ft - 295 MFt

 

Igénybe vehető lehetséges kedvezmények:

CSOK

5% Áfa visszatérítés

Babaváró hitel

Illeték kedvezmény vagy mentesség.



Az ingatlan árát a kulcsrakész állapotra adtuk meg, 2025. októberi költözéssel.



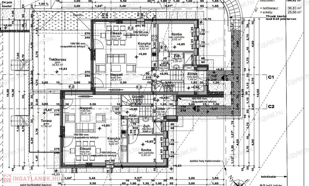
Helyiség lista a földszinten:

- Előtér

- Közlekedő

- Szoba

- Fürdőszoba

- Amerikai konyha,

- Étkező

- Nappali 

- Terasz



Helyiség lista az emeleten:

- Közlekedő

- Lépcsőház

- Fürdőszoba

- WC

- Három szoba

- Gardrób

- Erkély

 

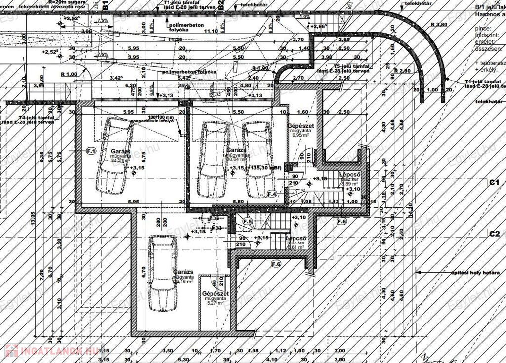
Helyiség lista a garázs szinten:

- Lépcsőház

- Gépészet

- Garázs

 

 

Az ingatlan biztonságos, nyugodt, csendes, kertes házas övezetében, a 3. kerület egyik legszebb részén található, az Ürömhegy területén. A környék fejlett infrastruktúrájának köszönhetően bővelkedik a szociális intézményekben, bölcsőde, óvoda, általános iskola, orvosi intézmények, bevásárlási lehetőségek, találhatóak a közelben.



Közlekedése kiváló, busszal Budapest központja vagy vonatokkal a Nyugati pályaudvar könnyedén megközelíthetőek.

 

Hitel, CSOK igénylésben díjmentes ügyintézéssel állunk rendelkezésére! Nálunk kiválaszthatja az Ön számára legkedvezőbb ajánlatot.



Várom megtisztelő érdeklődésüket.

 

 

Haus Daten

165 quadratmeter

305 quadratmeter

sehr gut

Doppelhaushälfte

Ziegel

n. a.

n. a.

doppel Komfort

neubau

n. a.

n. a.

n. a.