Haus kaufen, Budapest X. Bezirk

Startseite » Haus kaufen, Budapest X. Bezirk » Haus kaufen, Budapest X. Bezirk

265 000 000 Ft

€686 706
Inserent Daten

Jakab Judit

Neue Nachricht
Die Nachricht hat mindestens 10 Zeichen zu sein.
Beschreibung

Übersetzter Text

Urtext
Prémium nagypolgári villa Óhegyen – frissen felújítva, azonnal költözhető, akadálymentesített/ vállalkozásra is tökéletes

Budapest X. kerületének egyik legkedveltebb kertvárosi részén, Óhegyen eladó egy pompásan felújított, kiváló műszaki állapotú, két szintes nagypolgári villa, 729 m²-es gondozott saroktelken.
A ház azonnal költözhető, világos, reprezentatív terekkel és időtálló eleganciával várja új tulajdonosát.

A két szint teljesen külön bejárattal és önálló funkcióval is használható, közöttük mozgáskorlátozott lépcsőlift biztosít akadálymentes közlekedést.

Ideális: prémium otthonnak, exkluzív irodának vagy kétlakásos befektetésnek

A ház mérete és kialakítása miatt tökéletes választás:

elegáns városi villának,

exkluzív irodának / cégközpontnak,

rendelőnek, praxisnak,

két külön lakás bérbeadására,

vagy többgenerációs együttélésre.


Főbb előnyök

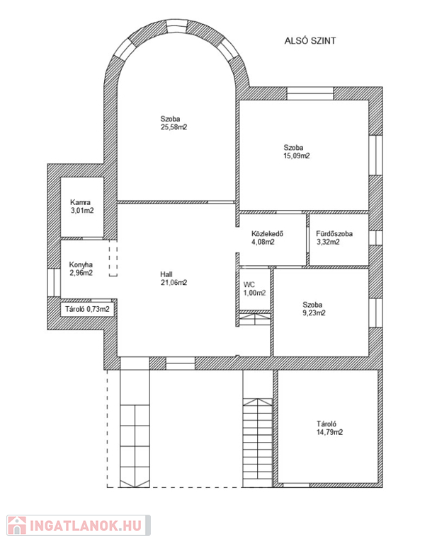
5 szoba, 2 konyha, 2 fürdő, nagy hallak és reprezentatív terek

Prémium szintű friss felújítás, korszerű gépészet

Körbenapozott, világos helyiségek

729 m²-es saroktelek több autóbeállóval

Motoros kapu, intim hátsó kert, külön tároló

Azonnal birtokba vehető, újszerű állapot


Különleges érték

A ház megjelenése, műszaki állapota és elrendezése ritka kombinációt kínál: egyszerre nyújt otthont, reprezentációt és üzleti lehetőséget egy csendes, mégis kiválóan megközelíthető környéken.

Haus Daten

182 quadratmeter

729 quadratmeter

renoviert

Einfamilienhaus

Ziegel

Umlaufheizung

Gasheizung

mit allem Komfort

älter als 50

n. a.

1 Ebene

n. a.

Karte