Übersetzter Text
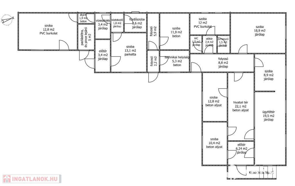
In Cereden steht ein einstöckiges Einfamilienhaus mit einer Nutzfläche von 197 m² zum Verkauf. Das Haus befindet sich statisch in ausgezeichnetem Zustand. Das Dach ist mit Ziegeln gedeckt, der Dachstuhl ist einwandfrei. Das Gebäude diente zuvor als Büro, Technikraum und Servicewohnung und ist daher in mehrere Gebäudeteile unterteilt. Die Innenverkleidungen müssen erneuert und renoviert werden. Einige Fenster und Türen sind neu. Das Gebäude bietet vielfältige Innenräume, da nur die äußeren Hauptwände tragend sind und sich daher nach Belieben umgestalten lassen. Es eignet sich als große Villa, Gästehaus, Apartmenthaus oder Jagdhaus. Es verfügt über alle notwendigen Anschlüsse und eine Zentralheizung mit Gaskessel. Darunter befinden sich zwei große, trockene Keller (28 und 14 m²). Der Hof ist durch ein breites Tor zugänglich und bietet ausreichend Platz für mehrere Autos oder den Bau einer großen Garage. Auf dem guten Betonfundament eines abgerissenen Nebengebäudes können im Handumdrehen eine Leichtbaukonstruktion, ein überdachter Grill oder eine Garage errichtet werden. Wenn ich Ihr Interesse geweckt habe, rufen Sie +36 70 423 1304 an! Cered ist eine der Perlen des Komitates Nógrád. Es liegt direkt an der slowakischen Grenze, und Sie können die Grenze sogar zu Fuß überqueren, um auf der slowakischen Seite zur Siedlung Tajti zu gelangen. Eine 20 km lange kurvenreiche Straße mit atemberaubenden Panoramen führt von Salgótarján zum Dorf. Westlich des Dorfes, am Fuße des Medves-Gebirges, entspringt der Fluss Tarna, der in Ost-West-Richtung durch das Dorf fließt. Neben den 620 m hohen Gipfeln von Medves und Szilvás-kő sind von den umliegenden Bergen fast das ganze Jahr über auch die Gipfel der Mátra-, Bükk- und Tatra-Berge zu sehen. Heute ist es aufgrund des Medves-Gebirges, der Wälder, der vielfältigen geologischen Formationen und der hier lebenden seltenen Pflanzen- und Tierarten ein Naturschutzgebiet. Die Pípó-pataki-Seen sind von bedeutendem regionalem Wert und laden zum Angeln ein. Einmal jährlich erwartet Künstler ein internationales Künstlercamp. Zwei Maler leben im Dorf. Es gibt einen traditionellen Paloc-Frauenchor, und auch Volksstickerinnen sind in der Siedlung zu finden. Im Dorf gibt es einen Kindergarten, eine Schule, einen Bezirksarzt, eine Krankenschwester, einen Zahnarzt und eine Apotheke. Das Krankenhaus und die Klinik des Komitats Szent Lázár befinden sich nur 20 km entfernt in Salgótarján und dienen der Region auch als zentrales Krankenhaus. Im Dorf gibt es außerdem öffentliche Beleuchtung, ein kabelgebundenes Trinkwasser- und Abwassernetz, ein kabelgebundenes Erdgasnetz, ein kabelgebundenes Telefonnetz und ein Breitband-Internetnetz. Auch mobiles Breitband-Internet ist in der gesamten Siedlung verfügbar. Die Gemeindestraßen sind asphaltiert. Es gibt eine wöchentliche Müllabfuhr, auch eine getrennte Müllabfuhr ist möglich. (Für weitere Bilder und Informationen rufen Sie bitte an!)
Urtext
Cereden egyszintes, 197 m2-es alapterületű, családi ház eladó. A ház statikailag kiváló állapotú. A tető cseréppel fedett, ácsolata hibátlan. Az ingatlan korábban hivatalként, műszaki állomásként, és szolgálati lakásként működött, ezért több részre osztott. A belső burkolatok cserélendők, felújítandók. Az ablakok egy része már új műanyag nyílászáró. Az épület jól variálható belső terekkel rendelkezik, csak a külső főfalai teherhordó falak, ezért belül tetszés szerint átalakítható. Egyaránt kialakítható belőle nagy villalakás, panzió, apartmanház, vagy vadászház. Összközműves, gázkazános központi fűtéssel rendelkezik. Két nagy, 28, és 14 m2-es, száraz pince található alatta. Az udvarra széles kapubejárón keresztül lehet behajtani, több autó tárolására, vagy nagy garázs építésére is megfelelő térrel rendelkezik. A ház mellett egy elbontott melléképület jó állapotú betonalapjára pillanatok alatt telepíthető egy könnyűszerkezetes építmény, fedett grillező, vagy garázs.
További információkért, hívjon a +36 70 423 1304-es telefonszámon!
Cered Nógrád vármegye egyik gyöngyszeme. Közvetlen a Szlovák határon fekszik, határátkelőjén, akár gyalogosan is át lehet menni a Szlovák oldalon lévő Tajti településre.
Salgótarjánból 20 km-es kanyargós, lélegzetelállító panorámájú út vezet a faluba.
A községtől nyugatra, a Medves hegység lábánál ered a községet kelet-nyugat irányba átszelő Tarna. A környező hegyekről a Medves és Szilvás-kő 620 m csúcsán kívül az év nagy részében láthatók a Mátra, a Bükk és a Tátra csúcsai is. Ma már természetvédelmi terület, a Medves hegyei, erdői, változatos geológiai képződménnyei, és az itt élő ritka növény- és állatfajok miatt. A Pípó-pataki tavak jelentős térségi értékek, ahol horgászati lehetőség áll az idelátogatók részére.
Évente egy alkalommal nemzetközi művésztábor várja ide az alkotókat. A faluban két festőművész is él. Működik palóc hagyományőrző asszonykórus, és népi hímző is fellelhető a településen.
Óvoda, iskola, körzeti háziorvosi, védőnői, fogorvosi ellátás, gyógyszertár is van a faluban.
Mindössze 20 km-re található Salgótarjánban a Szent Lázár Megyei Kórház- és Rendelőintézet, mely súlyponti kórházként látja el ezt a területet is.
A községben a közvilágítás, a vezetékes ivóvíz- és szennyvízhálózat, a vezetékes földgázhálózat, a vezetékes telefon és szélessávú internethálózat kiépítése is megtörtént. Szélessávú mobil internet szolgáltatás is elérhető a település egész területén. Az önkormányzati utak szilárd útburkolattal ellátottak. A települési szilárd hulladék hetenkénti elszállítása megoldott, és a szelektív hulladékgyűjtés is biztosított.
(További képekért és információkért kérem hívjon!)
197 quadratmeter
793 quadratmeter
sanierungsbedürftig
Einfamilienhaus
Ziegel
Hauszentralheizung (mit Kompakt-Wärmezähler)
n. a.
n. a.
n. a.
n. a.
n. a.
n. a.
Finden Sie das perfekte Haus, Wohnung, Büro, Garage, Grundstück oder jede andere Art von Immobilien!
Die Immobilien.co.hu ist ein mitglied der Immobilien Gruppe.
Verkäufliche Immobilien in Ungarn - Immobilien.co.hu © 2026 Alle Rechte vorbehalten