Haus kaufen, Dabas

Startseite » Haus kaufen, Dabas » Haus kaufen, Dabas

98 000 000 Ft

€256 149
Inserent Daten

Burkáné Balázs Eszter

Neue Nachricht
Die Nachricht hat mindestens 10 Zeichen zu sein.
Beschreibung

Übersetzter Text

Urtext

Eladó kétgenerációs családi ház! 

 

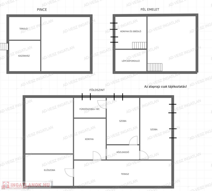
Budapesttől elérhető közelségben, jó környéken kínálunk megvételre egy 1993-ban épült, 1158m²-es telken álló, 2 külön bejáratú lakrésszel rendelkező családi házat.

 

Alsó szint (külön bejárattal, befejezést igényel):

- 2 szoba, konyha, fürdő+WC

- belső befejezést igényel (burkolatok, fürdőszoba)

- ideális kiadásra, vendégeknek vagy többgenerációs családnak

 

Felső szint (szinteltolásos, felújított):

- tágas előszoba

- nagy konyha + étkező

- nappali

- 2 hálószoba + dolgozósarok

- fürdő és külön WC

- legfelső szinten egy különálló, nagy hálószoba

- teljes felújításon esett át (nyílászárók kivételével)

 

Műszaki adatok:

- beton alap, tégla falazat, cseréptető

- közművesített ingatlan

- nyílászárók: hőszigetelt fa és részben műanyag (cseréjük folyamatban van)

- padlózat: laminált padló és járólap

- fűtés: központi gáz, klíma, konvektor és infra panel 

 

 

Telek adottságai:

- két utcáról bejárható

- nagy kocsibeálló + fedett parkoló

- medence helye már kibetonozva

- fúrt kút

- pince kb. 30m²

- gyümölcsfák, tyúkól, állattartásra is alkalmas

 

Előnyök:

- két különálló lakrész → több generációnak vagy befektetésnek is ideális

- csendes, fiatalos szomszédság, barátságos közeg, jó infrastruktúra és közlekedés

- a felújítás, korszerüsítés folyamatosan zajlik, így már az alsó szinten is új nyílászárók és bejárati ajtó van

 

Ha egy tágas, sok lehetőséget kínáló ingatlant keres családja vagy befektetés céljára, akkor ne hagyja ki ezt a lehetőséget, keressen bizalommal, akár hétvégén is!

 

Pest megye DK régión belül kis lakást beszámítunk! (Kispest, Ecser, Üllő, Vecsés)

 

Amennyiben az ingatlan felkeltette érdeklődését, kérem, hívjon bizalommal!

                       Burkáné Balázs Eszter

                      +36-30-3251293

Hitelügyintéző kollégánk államilag támogatott kamatozású hitelkonstrukciókkal, és CSOK teljeskörű ügyintézéssel áll rendelkezésére térítésmentesen! 

Az adásvételi szerződés megkötéséhez igény szerint megbízható ügyvédi közreműködést biztosítunk. 

Haus Daten

240 quadratmeter

1 158 quadratmeter

gut

Einfamilienhaus

Ziegel

Zentralheizung

n. a.

doppel Komfort

n. a.

n. a.

n. a.

n. a.