Haus kaufen, Dánszentmiklós

Startseite » Haus kaufen, Dánszentmiklós » Haus kaufen, Dánszentmiklós

56 900 000 Ft

€160 088
Inserent Daten

Alitisz Judit

Neue Nachricht
Die Nachricht hat mindestens 10 Zeichen zu sein.
Beschreibung

Übersetzter Text

Urtext
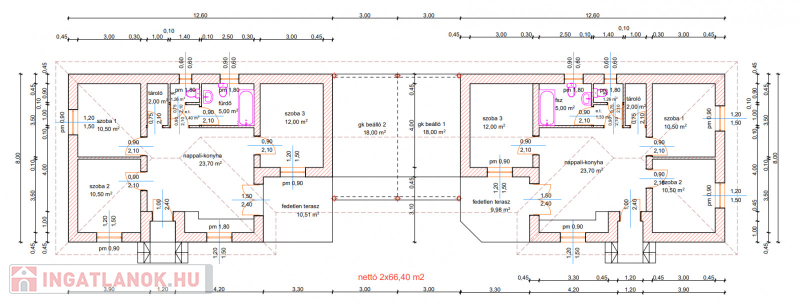
FOGLALHATÓ!Dánszentmiklóson – Budapesttől 50 km-re – eladó egy modern, 67,1 NETTO m²-es, 3 hálószobás + nappalis ikerházfél, 400 m²  KÜLÖN BEJÁRATÚ telekrésszel! A két épületet csak a garázs köti össze 17 nm, nincs közös fal, nincs összeépítés, a két lakás teljesen külön megközelíthető, kerítéssel elválasztva.Modern kialakítás – alacsony rezsiköltség – kiváló elosztás. A belső térben: előszoba, közlekedő, 3 külön nyíló szoba, fürdőszoba, külön WC, amerikai konyhás nappali, 9.43 nm kertkapcsolatos terasszal.Műszaki tartalom: Leier tégla falazat, 15 cm külső hőszigetelés, Bramac Nova tetőcserép, födémen 25 cm szigetelés, 3 rétegű, 6 légkamrás műanyag nyílászárók, redőnyelőkészítés, 10 kW-os hőszivattyús fűtésrendszer padlófűtéssel, Ariston okosbojler, hidegburkolat 9 500 Ft/m²-ig, melegburkolat 7 500 Ft/m²-ig, szaniterek 450 000 Ft-ig, belső ajtók 90 000 Ft-ig, 20 m² viacolorozott kocsibeálló 5 500 Ft/m²-től, max. 6 m²-ig.Átadás: 2026 második fele.Előnyök: referencia munkák megtekinthetők, foglaló után árgarancia, rugalmas fizetési ütemezés.Elhelyezkedés: Dánszentmiklós az M4-es és M5-ös autópályákról könnyen elérhető, Budapest kb. 30 perc alatt megközelíthető. A telek a 405-ös főúttól 4 km-re található.Kapcsolat: Alitisz Judit – 06 20 400 4009. Hívjon bizalommal, hétvégén is rendelkezésre állok!

Haus Daten

67 quadratmeter

900 quadratmeter

sehr gut

Einfamilienhaus

n. a.

sonstige

n. a.

mit allem Komfort

n. a.

n. a.

n. a.

n. a.