Haus kaufen, Debrecen

Startseite » Haus kaufen, Debrecen » Haus kaufen, Debrecen

99 350 000 Ft

€256 460
Inserent Daten

Boruzsné Szabó Klára

Neue Nachricht
Die Nachricht hat mindestens 10 Zeichen zu sein.
Beschreibung

Übersetzter Text
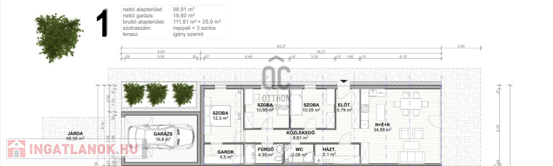
Im Debrecener Stadtteil Ober-Józsa steht ein neu erbautes, energieeffizientes Doppelhaus mit einem 977 m² großen Grundstück zum Verkauf! Wenn Sie Wert auf langfristiges Wohnen mit minimalen Betriebskosten legen, ist dieses Angebot genau das Richtige für Sie! Das Haus bietet 99 m² Wohnfläche plus eine 20 m² große Garage. Es verfügt über drei Schlafzimmer, ein Wohnzimmer mit offener Küche und Essbereich, ein Doppelbad und großzügige Raumaufteilung – ideal auch für große Familien! Die einzigartige, große Glasfront im Wohn-Essbereich harmoniert perfekt mit der hohen Decke. Geheizt wird mit einer Wärmepumpe, modernster Technologie, die eine umweltfreundliche und gleichzeitig wirtschaftliche Lösung bietet. Eine Klimaanlage sorgt für angenehme Temperaturen im Sommer. Dank des geplanten Drehstromanschlusses und der Installation von Solarmodulen sind sogar komplett betriebskostenfreie Instandhaltung möglich! Die Doppelhäuser sind massiv gebaut und schallisoliert. Die Verkehrsanbindung ist hervorragend, die Autobahn ist schnell erreichbar. Das Zentrum von Debrecen ist nur wenige Autominuten entfernt, auch öffentliche Verkehrsmittel befinden sich in unmittelbarer Nähe. Die Gegend ist bestens versorgt: Supermärkte, Einkaufszentren, Schulen, Kindergärten und alle anderen Geschäfte befinden sich im Zentrum. Geeignet für Csok+, Finanzierung möglich! Ziehen Sie diesen Herbst mit Ihren Lieben ein! Diese Immobilie ist nicht nur ein neues Zuhause, sondern ein Lebensstil, der modernen Komfort und Naturnähe mit minimalen Instandhaltungskosten verbindet! Ich freue mich auf Ihre Kontaktaufnahme für weitere Informationen! Debrecen, Józsa, zu verkaufen, Haus, Doppelhaushälfte, 4 Zimmer, Neubau, A+, energieeffizient, Erdgeschoss

Urtext
Debrecen Felső-Józsa városrészében egy új építésű, energiatakarékos családi ikerház, 977 m2-es telekkel eladó ! Ha szeretne biztos lenni abban, hogy otthona minimális rezsiköltséggel hosszú távon fenntartható, akkor ez a hirdetés önnek szól! Az ingatlan nettó 99 m2 lakótérrel + 20 m2-es garázzsal rendelkezik . 3 szoba+ amerikai konyhás nappali+ étkező, dupla fürdőszoba, tágas terek jellemzik, kiváló választás akár nagycsaládosok részére is!
Az egyedi tervezésű, nagy üvegfelülethez nagy belmagasság párosul a nappali-konyha -étkező részen. Fűtése hőszivattyúval történik, amely a legmodernebb technológiát képviseli, így nemcsak környezetbarát, hanem gazdaságos megoldást is nyújt. A hűtésről klímaberendezés gondoskodik, amely a nyári hónapokban kellemes hőmérsékletet biztosít. A 3 fázis bevezetésre kerül, így kellő napelemekkel akár teljesen 0-ás rezsiköltséggel is fenntartható! Az ikerházak önálló falazattal , hangszigeteléssel ellátva.
Közlekedési lehetőségek kiválóak, az autópálya pillanatok alatt elérhető. Debrecen központja mindössze néhány percnyi autóútra található, tömegközlekedés is a közelben. A városrész jól ellátott, élelmiszerüzletek, bevásárló központok, iskolák, óvodák és minden más üzlet a központban.
Csok+-ra alkalmas, hitelezhető! Költözzön szeretteivel már idén ősszel!
Ez az ingatlan nem csupán egy új otthon, hanem egy életstílus, amely a modern kényelmet és a természet közelségét ötvözi minimális fenntartási költséggel!
További felvilágosításért várom megkeresését!



Debrecen, Józsa, eladó, ház, ikerház, 4 szoba, új építésű, A+, energiatakarékos, földszintes

Haus Daten

99 quadratmeter

977 quadratmeter

sehr gut

Doppelhaushälfte

n. a.

n. a.

n. a.

n. a.

n. a.

n. a.

n. a.

n. a.

Bilder