Übersetzter Text
Urtext
ÚJ ÉPÍTÉSŰ IKERHÁZAK ELADÓK EBESEN – ZSÁKUTCÁS, EXKLUZÍV KÖRNYEZETBEN
Debrecen vonzáskörzetében kínálunk eladásra 2 db új építésű ikerházat, csendes, magánúton megközelíthető zsákutcában, rendezett családi házas környezetben.
Az ingatlanok A+ energetikai besorolásúak, modern műszaki tartalommal, prémium kivitelezésben készülnek – ideális választás családoknak és befektetőknek egyaránt.
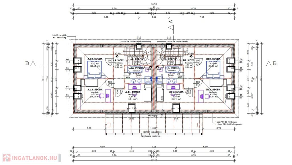
Főbb paraméterek
• Kétszintes ikerházak
• Bruttó alapterület: 104,68 m²
• Hasznos alapterület: 87,97 m²
• + 16 m² garázs, távirányítós kapuval
• 3 hálószoba + nappali
• 13 m² terasz
• Világos, tágas terek, jól berendezhető helyiségek
• Vezérléssel zárható, közvetlen kapcsolattal rendelkező garázs
Műszaki tartalom – minőség minden részletben
• Porotherm 30 N+F főfalak, Porotherm 10 N+F válaszfalak
• Levegő–víz hőszivattyús fűtési rendszer
• Padlófűtés 5 zónás termosztátvezérléssel
• 3 rétegű üvegezésű műanyag nyílászárók
• 12 cm Austrotherm homlokzati hőszigetelés
• Lakásonként 1 db 3,5 kW klímaberendezés
• Hörmann szekcionált garázskapu, távirányítós
• Bramac Római Novo barna tetőcserép
• Bézs színű nemesvakolat
• Földszinti ablakok kétszínű kivitelben (belül fehér, kívül sötétbarna) – könnyen illeszthető az egyedi belső designhoz
Átadás: 2026. ősz. Az ingatlanok megfelelnek a támogatott hitel feltételeinek.
Miért válaszd Ebest lakhelyül?
Ideális lakókörnyezet: Ebes Debrecen közvetlen közelében található, nyugodt, biztonságos, családbarát környezetben.
A mindennapi élethez szükséges intézmények néhány percen belül elérhetőek:
• óvoda, bölcsőde, iskola
• üzletek, posta, gyógyszertár
• templom, vállalkozói ház és egyéb szolgáltatások
Kiváló elhelyezkedésének köszönhetően Debrecen és Hajdúszoboszló is gyorsan megközelíthető, így a csendes otthoni környezet és a városi infrastruktúra tökéletes egyensúlyban van.
Jöjjön, nézze meg és tegyen ajánlatot!
(További képekért és információkért kérem hívjon!)
104 quadratmeter
290 quadratmeter
sehr gut
Doppelhaushälfte
Ziegel
n. a.
n. a.
n. a.
n. a.
n. a.
n. a.
n. a.
Finden Sie das perfekte Haus, Wohnung, Büro, Garage, Grundstück oder jede andere Art von Immobilien!
Die Immobilien.co.hu ist ein mitglied der Immobilien Gruppe.
Verkäufliche Immobilien in Ungarn - Immobilien.co.hu © 2026 Alle Rechte vorbehalten