Übersetzter Text
Urtext
ELADÓ FELÚJÍTANDÓ CSALÁDI HÁZ ENYINGEN!
FIGYELEM!
- A ház a Balatontól 15 perce található autóval!
- A ház műszaki szempontból FELÚJÍTÁST igényel!
- A házhoz tartozik egy hatalmas telek (vállalkozásra is alkalmas), különálló pince és gazdasági épületek!
- Az esetleges elírások, információk és a változtatások jogát fenntartjuk
ALAPADATOK:
- A ház építési éve ∼1950, VEGYES FALAZATÚ: TÉGLA, TÖMÉSFAL
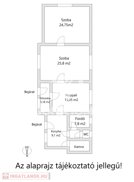
- A ház hasznos alapterülete 87,68 m2
- A házban megtalálható 3 szoba, konyha, spejz, kamra, fürdő
- A telek vállalkozásra is alkalmas és megosztható, belterületi ingatlan
MŰSZAKI ÉS ESZTÉTIKAI ÁLLAPOT:
- A fűtés GÁZKAZÁNNAL ÉS KANDALLÓVAL történik
- A meleg vizet VILLANYBOJLER biztosítja
- A nyílászárók mindenhol JÓ ÁLLAPOTÚ MŰANYAG nyílászárók fa és műanyag redőnnyel
- A villanyvezeték- és vízvezeték-hálózat KORSZERŰSÍTÉST IGÉNYEL!
KÖZELBEN TALÁLHATÓ:
- Új uszoda
- Óvoda, bölcsőde
- Rendelőintézet
- Nagyobb üzletláncok ( Lidl, Penny, Aldi, Coop)
- Kisebb üzlethelyiségek ( 4 pékség és 4 hentesüzlet)
- Gyógyszertár
- Nyugdíjasotthonok
Amennyiben az ingatlan megvásárlásához el kell adnia jelenlegi otthonát, úgy annak és a teljes folyamatnak a lebonyolításában is állok rendelkezésre!
További információkért forduljon hozzám bizalommal, hívjon a megadott telefonszámon - akár hétvégén is!
TOVÁBBI SZOLGÁLTATÁSAINK:
- Megbízható ügyvédi háttér
- INGYENES, FÜGGETLEN hitelügyintézés
- INGYENES, FÜGGETLEN biztosítási tanácsadás
- Energetikai tanúsítvány és ingatlan értékbecslés készítése
- Klíma rendszerek kiépítése és beüzemelése
- Riasztó- és kamera rendszerek kiépítése
- Közművek és szolgáltatók átírása
- Birtokbaadás lebonyolítása
- Kert- és tereprendezés
- Ingatlan takarítás
- Ingatlan felújítás
- Költöztetés
#gonahome #tegyelprobara #keressbizalommal #mindenamiingatlan
87 quadratmeter
7 974 quadratmeter
sanierungsbedürftig
Einfamilienhaus
Lehm
Umlaufheizung
Gasheizung
mit allem Komfort
n. a.
n. a.
n. a.
n. a.
Finden Sie das perfekte Haus, Wohnung, Büro, Garage, Grundstück oder jede andere Art von Immobilien!
Die Immobilien.co.hu ist ein mitglied der Immobilien Gruppe.
Verkäufliche Immobilien in Ungarn - Immobilien.co.hu © 2026 Alle Rechte vorbehalten