Haus kaufen, Felsőnyék

Startseite » Haus kaufen, Felsőnyék » Haus kaufen, Felsőnyék

8 400 000 Ft

€21 621
Inserent Daten

Kránicz Éva

Neue Nachricht
Die Nachricht hat mindestens 10 Zeichen zu sein.
Beschreibung

Übersetzter Text

Urtext
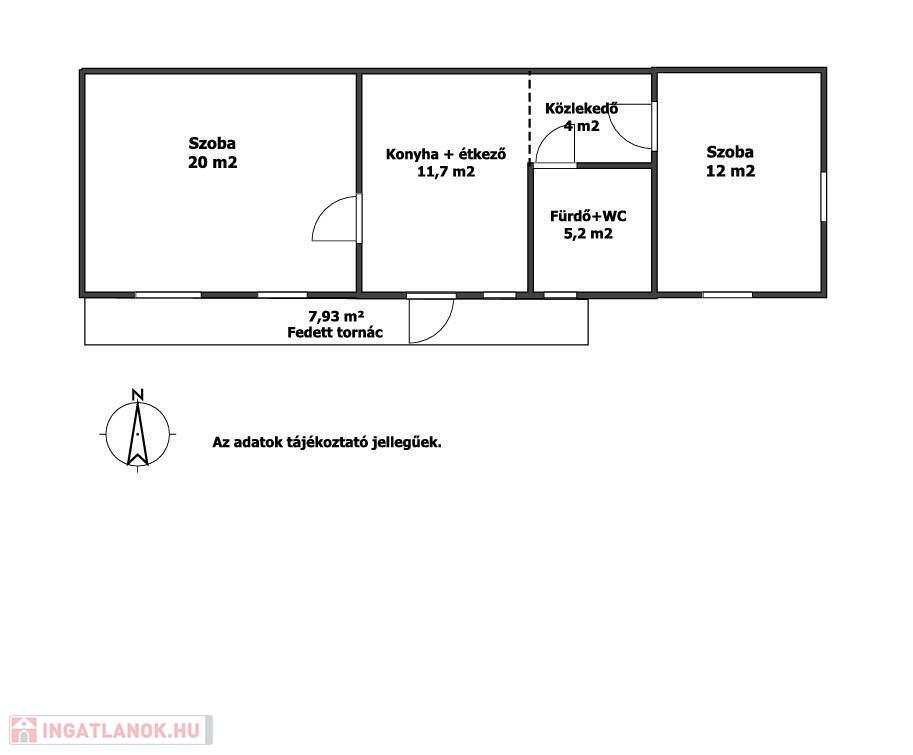
Felsőnyék központi részén, a Balatontól mindössze 30 kilométerre eladó egy 53 m2-es, vegyes falazatú családi ház 740 m2-es telekkel. A ház kiváló elhelyezkedésű, hiszen néhány perc sétára található bolt, hivatal, posta és buszmegálló, így a mindennapi ügyintézés rendkívül kényelmes.
Az ingatlan belső tere nemrégiben teljes festést kapott, modern stílusban lett kialakítva, így azonnal költözhető állapotban várja új tulajdonosát. A fűtést kandalló biztosítja, az egyik szoba laminált padlóval, a másik pedig járólappal burkolt, az álmennyezet felett szigetelés található. A vízrendszer teljes egészében új, a szennyvízakna korszerűsítve lett, a bejárati ajtót modern műanyagra cserélték, és több nyílászáró is megújult. A házhoz hangulatos tornác tartozik, a ragalját idén készítették, és az udvaron is új kerítéselemek kerültek elhelyezésre, így az összkép rendezett, barátságos. A padlás padlásfeljárón keresztül közelíthető meg.
Az épület szerkezete stabil, azonban a tető és néhány egyéb rész felújításra szorul.
Az ingatlan remek választás lehet otthonnak, de akár nyaralónak is a Balaton közelsége miatt.
Megfelel az otthon start program feltételeinek.
A tulajdoni viszonyok rendezettek, tehermentes az ingatlan.
Előzetes időpont egyeztetés után bármikor megtekinthető.

Referencia szám: M313509

Haus Daten

53 quadratmeter

740 quadratmeter

durchschnittlich

Einfamilienhaus

gemischt

sonstige

n. a.

Komfort

älter als 50

n. a.

ebenerdig

n. a.

Karte