Übersetzter Text
Urtext
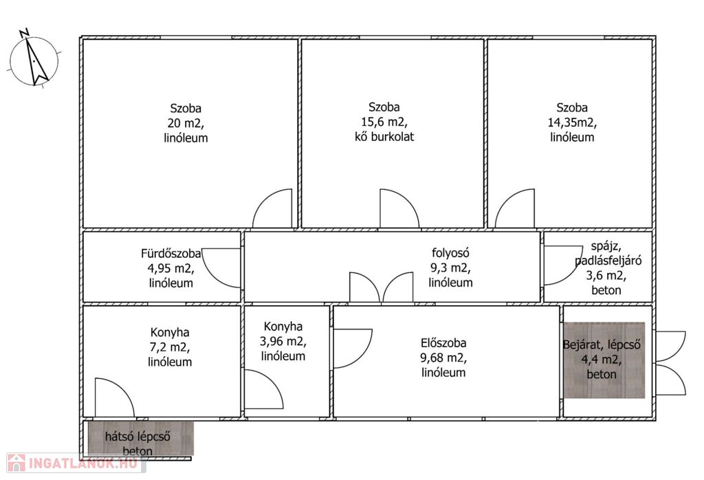
Most alkalmi áron eladó Kazáron, egy nagyon jó helyen lévő, nagy, lapos telekkel rendelkező családi ház. A ház régóta nem lakott, kívül és belül felújításra szorul, ezért is ilyen kedvező az ára. Az alapterülete 93 négyzetméter, azaz a falusi CSOK támogatás igényelhető rá, akár három gyermekkel is, így csekély saját erővel is megszerezhető! Az ingatlan összközműves, vezetékes gáz, elektromos áram, és vezetékes víz bekötéssel rendelkezik, csatlakozik a szennyvízhálózatra, továbbá elérhető az optikai Internet hálózat is. jelenleg gázkonvektoros fűtésű, és a melegvíz ellátását is átfolyós, gázüzemű vízmelegítő szolgáltatja. A szobái tágasak. A tető ácsolata új, a héjazat sajnos javításra szorul, emiatt több helyen beázási foltok vannak a mennyezeten. Az udvarra gépjárművel is be lehet állni. A ház alatt két nagy pince is van. Egy alapos felújítás után a ház a jelenlegi vételárának két-háromszorosát is megéri, mert az alapterülete nagy, a hozzá tartozó telek pedig kiváló adottságú. Aki nem ijed meg egy kis munkától, annak kiváló lehetőség, akár saját otthon, akár befektetés céljára!
Amennyiben felkeltettem az érdeklődését, hívjon a 36 70 423 1304-es telefonszámon!
Kazár az egyik leghíresebb település Nógrád Vármegyében. Az évenkét rendezett Laskafesztivál az egész országból vonzza a közönséget. Nagy, jó hírű iskolája van, szép faluháza, gazdag múltja, valamint itt található az országos hírű Riolittufa is, számtalan egyéb látnivaló mellett.
A megyeszékhely mindössze tizenöt perc alatt elérhető autóval, de rendszeres autóbuszjárat is közlekedik a település és Salgótarján között.
(További képekért és információkért kérem hívjon!)
93 quadratmeter
1 300 quadratmeter
sanierungsbedürftig
Einfamilienhaus
Ziegel
mit Konvektor
n. a.
n. a.
n. a.
n. a.
n. a.
n. a.
Finden Sie das perfekte Haus, Wohnung, Büro, Garage, Grundstück oder jede andere Art von Immobilien!
Die Immobilien.co.hu ist ein mitglied der Immobilien Gruppe.
Verkäufliche Immobilien in Ungarn - Immobilien.co.hu © 2025 Alle Rechte vorbehalten