Haus kaufen, Kecskemét

Startseite » Haus kaufen, Kecskemét » Haus kaufen, Kecskemét

80 000 000 Ft

€204 923
Inserent Daten

Kocsis Zsuzsanna

Neue Nachricht
Die Nachricht hat mindestens 10 Zeichen zu sein.
Beschreibung

Übersetzter Text

Urtext
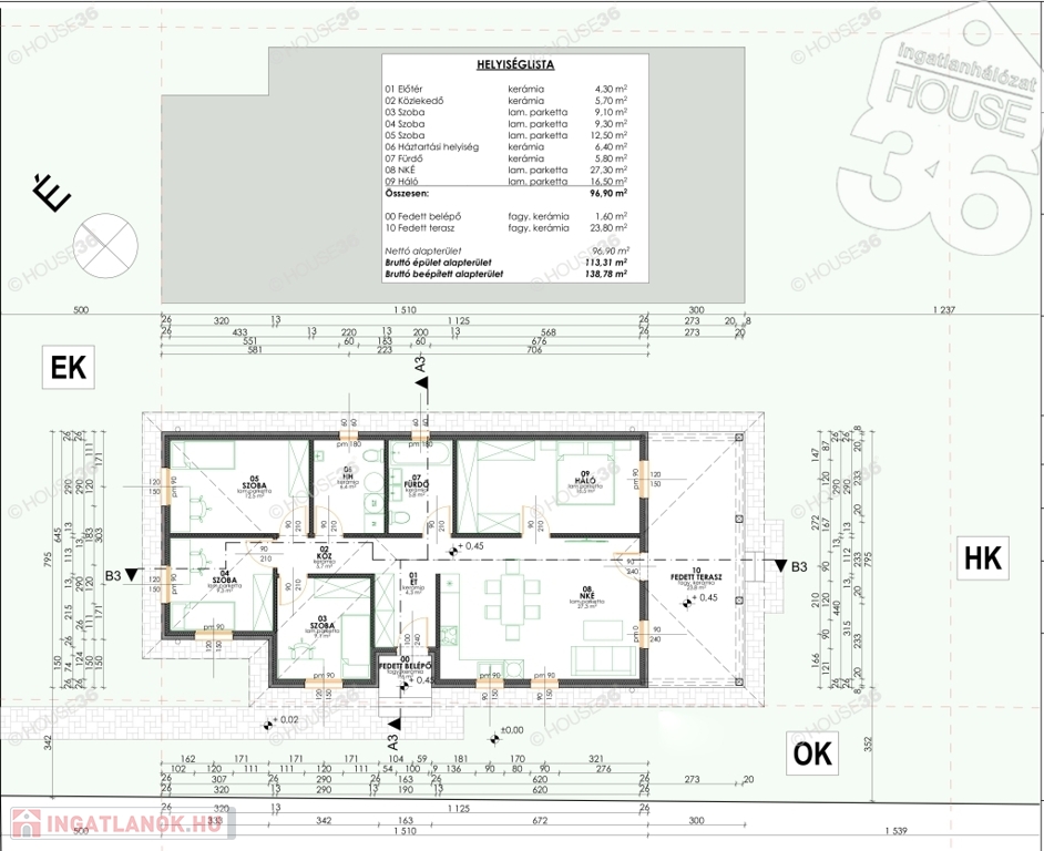
Kényelmes,nagy,új építésű családi ház egy remek lakóparkban ELADÓ!

- 4 szoba
- 96,9 m2 nettó lakótér


- 2 Wc
- 24,4m2 fedett terasz
- fedett belépő
- nagy nappali,konyha ,étkező
- 138,78 m2 bruttó
- 575 m2 telek
- hőszivattyú
- padlófűtés

Választható színek,szaniterek,nyílászárók,burkolatok.
Műszaki tartalomért hívja értékesítőinket.
További tájékoztatásokért várjuk önt irodáinkban.

A HOUSE36 kínálatában lévő összes ingatlannal kapcsolatban tudok felvilágosítást nyújtani.
Szolgáltatásaink kereső ügyfeleink részére ingyenesek.
Az iroda legfrissebb, aktuális kínálatát a HOUSE36 saját weboldalán találja!

Haus Daten

96 quadratmeter

575 quadratmeter

im Bau

Einfamilienhaus

Leichtbauplatte

sonstige

n. a.

n. a.

neubau

n. a.

ebenerdig

n. a.

Karte