Übersetzter Text
Wir bieten ein 71 m² großes 4-Zimmer-Einfamilienhaus in einer ruhigen Straße in Letenye zum Verkauf an, das auf einem 1655 m² großen Grundstück liegt. Die Immobilie ist eine ideale Wahl für diejenigen, die gerne in einer ruhigen, naturnahen Umgebung leben möchten, für die aber gleichzeitig die günstige Lage der Stadt wichtig ist: Die Autobahn M7 sowie die kroatische und slowenische Grenze befinden sich in unmittelbarer Nähe von Letenye, sodass größere Städte und der Plattensee leicht erreichbar sind. Die Aufteilung des Hauses ist praktisch: Alle Räume sind bequem vom Flur aus erreichbar. Das Badezimmer verfügt über eine Dusche und ein WC, und ein Raum, der als Esszimmer genutzt werden kann, ist mit der Küche verbunden. Das 1965 erbaute Backsteinhaus verfügt über alle Anschlüsse und wird mit einem Gaskonvektor, einem Kamin und einer Infrarotheizung beheizt. Das Stromnetz wurde renoviert. In Verbindung mit dem Hauptgebäude kann ein 26 m² großer separater Wohnbereich geschaffen werden, der über ein eigenes Bad sowie ein kleines Wohnzimmer und eine Küche verfügt – somit eignet es sich hervorragend für das Zusammenleben mehrerer Generationen oder kann auch eine perfekte Lösung für Gäste sein. Darüber hinaus umfasst das Anwesen ein über 70 m² großes Nebengebäude mit einer Garage und mehreren Abstellräumen. Der großzügige Garten eignet sich ideal für den Anbau von Pflanzen und die Tierhaltung, und derzeit gibt es dort mehrere Obstbäume. Diese Immobilie ist eine echte Gelegenheit für Familien, die ein praktisches, multifunktionales Zuhause in einer ruhigen, grünen Umgebung mit hervorragender Verkehrsanbindung suchen. Referenznummer: HK-5015742-NOK
Urtext
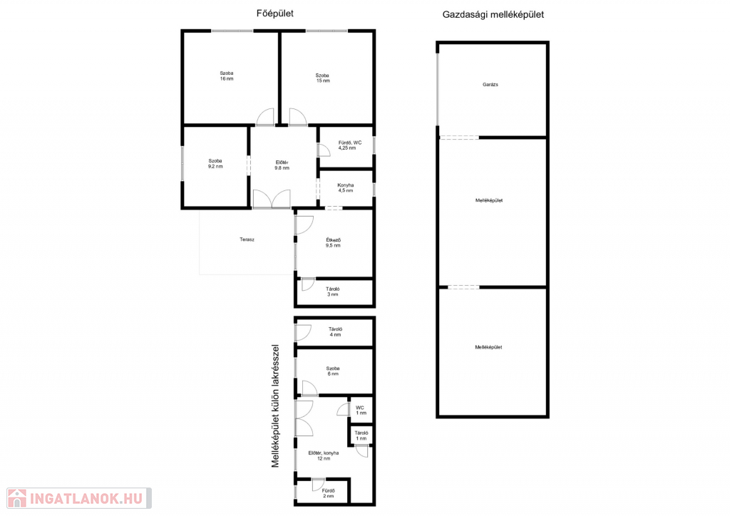
Letenye egyik csendes, nyugodt utcájában kínálunk eladásra egy 71 m²-es, 4 szobás családi házat, amely egy 1655 m²-es telken helyezkedik el. Az ingatlan ideális választás lehet azoknak, akik szeretnének a természetközeli, békés környezetben élni, ugyanakkor fontos számukra a város kedvező elhelyezkedése: Letenye közvetlen közelében található az M7-es autópálya, valamint a horvát és szlovén határ, így könnyen megközelíthető nagyobb városok és a Balaton is.
A ház elrendezése praktikus: az előtérből minden helyiség könnyen elérhető. A fürdőszobában zuhanyzó és WC található, a konyhához egy étkezőként használható szoba kapcsolódik.
Az 1965-ben épült, téglából készült ház összközműves, fűtését gázkonvektor, kandalló és infrapanel biztosítja. A villamoshálózat felújításra került.
A főépülethez kapcsolódóan kialakítható egy 26 m²-es külön lakrész, amely saját fürdőszobával, kis nappali-konyhával rendelkezik – így akár több generáció együttélésére is kiválóan alkalmas, vagy vendégek számára is tökéletes megoldás lehet.
Emellett az ingatlanhoz tartozik egy 70 m²-nél nagyobb gazdasági melléképület, amelyben garázs és több tárolóhelyiség is helyet kapott.
A tágas kert ideális növénytermesztésre és állattartásra, jelenleg is több gyümölcsfa található az udvarban.
Ez az ingatlan igazi lehetőség azoknak a családoknak, akik nyugodt, zöld környezetben keresnek praktikus, többfunkciós otthont, kiváló közlekedési kapcsolatokkal.
Referencia szám: HK-5015742-NOK
71 quadratmeter
1 655 quadratmeter
gut
Einfamilienhaus
Ziegel
mit Konvektor
Gasheizung
n. a.
älter als 50
n. a.
ebenerdig
n. a.
Finden Sie das perfekte Haus, Wohnung, Büro, Garage, Grundstück oder jede andere Art von Immobilien!
Die Immobilien.co.hu ist ein mitglied der Immobilien Gruppe.
Verkäufliche Immobilien in Ungarn - Immobilien.co.hu © 2026 Alle Rechte vorbehalten