Übersetzter Text
Urtext
Eladó a gyermekklinika szomszédságában elhelyezkedő ház.
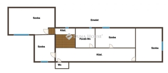
Az 179 m²-es otthon hat szobával és kertkapcsolattal büszkélkedik. A lakóterület ideális térkialakítása és elhelyezkedése egyaránt vonzóvá teszi ezt az ingatlant családok és befektetők számára egyaránt.
Eladó téglából épült, korszerűsítést igénylő ingatlan, mely a gyermekklinika szomszédságában helyezkedik el. Az 179 m²-es otthon hat szobával és lenyűgöző kertkapcsolattal büszkélkedik. A lakóterület ideális térkialakítása és elhelyezkedése egyaránt vonzóvá teszi ezt az ingatlant családok és befektetők számára egyaránt.
179 quadratmeter
179 quadratmeter
gut
Teil eines Hauses
Ziegel
Umlaufheizung
Gasheizung
n. a.
11-20 jährig
n. a.
ebenerdig
n. a.
Finden Sie das perfekte Haus, Wohnung, Büro, Garage, Grundstück oder jede andere Art von Immobilien!
Die Immobilien.co.hu ist ein mitglied der Immobilien Gruppe.
Verkäufliche Immobilien in Ungarn - Immobilien.co.hu © 2026 Alle Rechte vorbehalten