Haus kaufen, Pilisborosjenő

Startseite » Haus kaufen, Pilisborosjenő » Haus kaufen, Pilisborosjenő

175 000 000 Ft

€487 248
Inserent Daten

Szaszala Zsolt

Neue Nachricht
Die Nachricht hat mindestens 10 Zeichen zu sein.
Beschreibung

Übersetzter Text

Urtext
Projekt bemutatása

ÚJÉPÍTÉSŰ PRÉMIUM CSALÁDI HÁZAK PILISBOROSJENŐN, A NAGY-KEVÉLY LÁBÁNÁL

Fedezze fel új otthonát Pilisborosjenőn, Budapest közvetlen közelében, ahol a természet és a modern építészet találkozik. A festői panoráma a pilisi hegyekre, a környező településekre, sőt, tiszta estéken egészen a Parlamentig nyújt felejthetetlen látványt.
Prémium minőség – energiahatékony megoldásokkal
Az épületek a legkorszerűbb technológiákkal és anyagokkal készülnek, „A” energetikai besorolással. A hőszivattyús padlófűtés, a split klímák hűtés-fűtés funkciója és a gondosan megválasztott prémium burkolatok garantálják az otthon kényelmét és gazdaságos fenntarthatóságát.
Otthon, amely igazodik az Ön életéhez
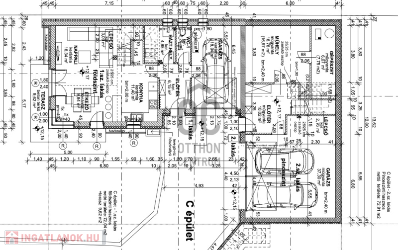
Összesen 6 lakóház, saját kerttel, autóbeállóval vagy garázzsal
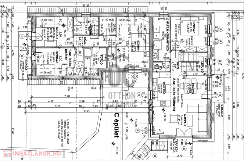
Kétszintes, 114–196 m²-es terek – átgondolt alaprajzokkal
Földszinten: tágas nappali-étkező-konyha, hálószoba, fürdő, háztartási helyiség, kamra
Emeleten: három hálószoba, gardrób és fürdőszoba
Különlegesség: a C épület egyik lakása háromszintes, kétállásos garázzsal és extra tárolási lehetőséggel
Kivételes elhelyezkedés – közel a fővároshoz, mégis a természet ölelésében
Pilisborosjenő igazi gyöngyszem: nyugodt, biztonságos település minden korosztály számára, mindössze 13 km-re Budapesttől. Autóval és tömegközlekedéssel is könnyen megközelíthető (busz, vonat).
A település saját óvodával, iskolával, orvosi rendelővel és modern közösségi létesítményekkel rendelkezik. A környék kirándulási és sportlehetőségek széles tárházát kínálja: Teve-szikla, Egri vár másolata, Kevélyhegyi tanösvény, levendulamezők és lovardák teszik teljessé az itt töltött mindennapokat.

✨ Ez nem csupán egy ingatlan – ez az Ön jövőbeli otthona, ahol a természet közelsége és a modern élet kényelme tökéletes harmóniában találkozik.

Bővebb információért, műszaki tartalommal, megtekintéssel kapcsolatban keressen bizalommal!

Haus Daten

120 quadratmeter

318 quadratmeter

sehr gut

Einfamilienhaus

n. a.

n. a.

n. a.

n. a.

n. a.

n. a.

n. a.

n. a.