Haus kaufen, Szeged

Startseite » Haus kaufen, Szeged » Haus kaufen, Szeged

199 900 000 Ft

€519 032
Inserent Daten

Ferge Attila

Neue Nachricht
Die Nachricht hat mindestens 10 Zeichen zu sein.
Beschreibung

Übersetzter Text

Urtext
Eladó kétgenerációs családi ház és melléképület Szeged-Baktó csendes, zöldövezeti részén!

Szeged-Baktó egyik kedvelt utcájában, igényes családi házak szomszédságában kínálunk megvételre egy teljes körűen felújított, napfényes, kétszintes családi házat, amely két különálló lakrésszel rendelkezik, valamint egy szintén felújított melléképület tartozik hozzá. A tágas, 1453 m²-es telek további lehetőségeket rejt: a hátsó rész leválasztható, így egy kb. 700 m²-es építési telek is kialakítható.

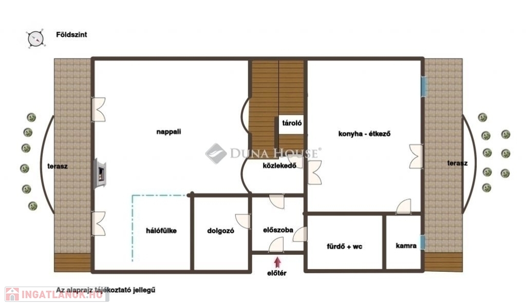
Főépület (137,71 / 166,32 m²):

Földszint: tágas, világos nappali kandallóval, étkezős konyha, kamra, szoba, hálófülke, fürdőszoba, tároló, valamint két fedett terasz.

Emelet: amerikai konyhás nappali, 3 külön nyíló hálószoba, fürdőszoba, loggia.

Melléképület (45 m²):
2 szoba, konyha-étkező, kamra, fürdőszoba, valamint egy 20 m²-es terasz.

Felújítás és műszaki állapot:

Teljes körű korszerűsítés 2020-ban és 2022-ben (főépület és melléképület)

Új víz- és elektromos hálózat, modern hőszigetelt nyílászárók redőnnyel és szúnyoghálóval

Baxi kazán, Ariston vízmelegítő, Gree inverteres klíma

Szigetelt épület, fúrt kút, automata öntözőrendszer

Önálló mérőórák minden lakrészhez

Kert és parkolás:
Rendezett, parkosított kert, mellé garázs és kerékpárút az épület előtt.

Ez a kétgenerációs ingatlan ideális választás nagycsaládosok, összeköltözők vagy akár befektetők számára is, hiszen különálló lakrészeinek és melléképületének köszönhetően számos lehetőséget kínál.

Ha Ön is egy nyugodt, zöldövezeti környezetben keres tágas, többfunkciós családi házat Szegeden, ne hagyja ki ezt a lehetőséget! Keressen bizalommal a részletekért vagy egy személyes megtekintésért!

Haus Daten

166 quadratmeter

1 453 quadratmeter

gut

Einfamilienhaus

Ziegel

Umlaufheizung

Gasheizung

doppel Komfort

21-50 jährig

n. a.

ebenerdig

n. a.

Karte