Übersetzter Text
Urtext
Szeged kertvárosi részén , Petőfi telep és Tápé határán , a Zágráb utcában , 500 m2-es telken épült , 122m2-es , nappali + 3 szobás , emelt szerkezetkész, családi ház eladó.
Az eredetileg 1000m2-es telek belső részében épült egy új családi ház , ez az utcafronti épület ,amelyet pedig teljes körűen , felújítottak és bővítettek.
Jelenleg emelt szerkezetkész : külső vakolat , hőszigetelés , műanyag hőszigetelt ablakok , ajtók , napelem 4kw, fűtésrendszer, fan-coil , hőszivattyú , teljes kiépített villamos hálózat-szerelvényekkel , kiépített szellőzőrendszer , megépített kerítés ....
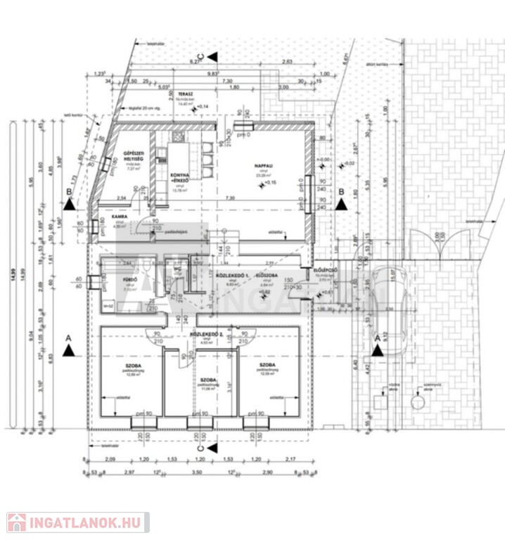
Elrendezését tekintve: három külön nyíló szoba , fürdőszoba , vendég mosdó , tágas előszoba és a napfényes amerikai konyhás nappali , közvetlen terasz és kertkapcsolattal és a gondos tervezésnek köszönhetően , külön helyiségben még , kamra és háztartási/ gépészeti helyiségnek is jutott hely.
Kulcsra kész előtti állapot , amikor is még saját igényei és stílusában tudja kialakítani álmai otthonát!
Kiváló lokáció , kertvárosi környezet , nagyszerű ajánlat !
Jöjjön el , nézze meg , tegyen ajánlatot !
Hívjon bizalommal, akár hétvégén is !
122 quadratmeter
0 quadratmeter
renoviert
Einfamilienhaus
n. a.
Umlaufheizung
n. a.
n. a.
n. a.
n. a.
n. a.
n. a.
Finden Sie das perfekte Haus, Wohnung, Büro, Garage, Grundstück oder jede andere Art von Immobilien!
Die Immobilien.co.hu ist ein mitglied der Immobilien Gruppe.
Verkäufliche Immobilien in Ungarn - Immobilien.co.hu © 2026 Alle Rechte vorbehalten