Übersetzter Text
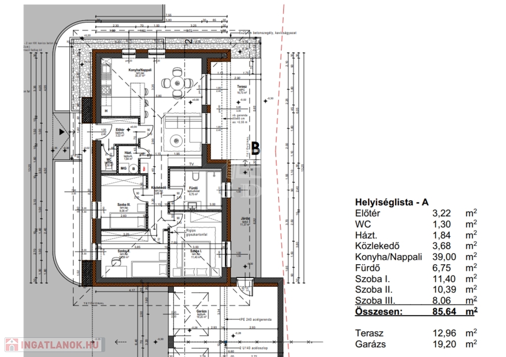
Zum Verkauf steht ein neu gebautes 86 m2 großes Doppelhaus im sich dynamisch entwickelnden Teil von Szombathely auf dem Oladi-Hügel. In einer panoramischen, ruhigen und friedlichen Umgebung ist der gemeinsame Treffpunkt der gut angeordneten Doppelhaushälften nur die Garagenwand. Das Anwesen wurde mit hohem technischen Inhalt gebaut. Die tragenden Wände und Trennwände des Gebäudes wurden aus Leier-Ziegeln errichtet. Die Fassade erhielt ein 15 cm starkes EPS-Wärmedämmsystem, die Decke wurde mit einer 30 cm starken Dämmung versehen. Das Dach ist mit Bramac-Ziegeln gedeckt. Seine Kunststofffenster und -türen sind hoch schallisoliert und mit Aluminium-Rollläden und Moskitonetzen ausgestattet. Elektrische Ausführung: 1x32 Ampere mit elektrischer Leistung + 1X32 Ampere mit H-Tarif. Heizung und Warmwasserversorgung mit einer 10 kW Gree Versati 3 Wärmepumpe im Hauswirtschaftsraum. Die Heizung erfolgt über eine Fußbodenheizung mit einstellbarem Thermostat. Die Gree Versati Wärmepumpe sorgt außerdem mit einem 200 Liter großen Wärmespeicherwassertank für Warmwasser. Im Wohnzimmer wurde eine Kühl- und Heizklimaanlage installiert. Die meisten Möbel im Haus wurden von einem renommierten Innenarchitekturstudio entworfen und gebaut. Die Küche ist äußerst praktisch und mit hochwertigen Haushaltsgeräten ausgestattet. Die Ausrüstung ist im Kaufpreis inbegriffen. Wenn Sie eine gut ausgestattete, durchdachte Immobilie mit guter Atmosphäre suchen, dann haben Sie sie gefunden. Für weitere Informationen und Besichtigungen kontaktieren Sie bitte unser Büro. Nutzen Sie unsere Dienste! Wenn Sie einen Kredit oder staatliche Unterstützung benötigen, können wir Ihnen auch dabei helfen.
Urtext
Szombathely dinamikusan fejlődő városrészén, az oladi dombon új építésű 86 m2-es ikerház eladó. A panorámás, csendes nyugodt környezetben, a jó elrendezésű ikerházak közös találkozási pontja csupán a garázsok fala. Magas műszaki tartalommal épült az ingatlan . Az épület teherhordó és válaszfalai Leier téglával kerültek kivitelezésre. Homlokzata 15 cm vastag EPS hőszigetelő rendszert kapott, a födémre 30 cm vastag szigetelés került. A tetőt Bramac cserép borítja. Műanyag nyílászárói fokozottan hang-és hőszigeteltek, alumínium redőnyökkel, szúnyoghálókkal felszereltek. Elektromos kialakítás: 1x32 Amper elektromos kapacitással + 1X32 Amper H tarifával. Fűtés és meleg vízellátás, a fűtést biztosító háztartási helyiségben elhelyezett 10 Kw Gree Versati 3 hőszivattyúval, padlófűtéses rendszerrel készült, szabályozható termosztáttal. A Gree Versati hőszivattyú biztosítja a meleg vizet is egy 200 literes hőtárolós víztartállyal. Nappalijában hűtő-fűtő klímát szereltek. A ház nagy részében neves belsőépítészeti stúdió által tervezett és kivitelezett bútorokat építettek be. Konyhája rendkívül praktikus, minőségi háztartási gépekkel felszerelt. A berendezés a vételár részét képezi. Ha jó hangulatú, szépen bebútorozott, átgondolt ingatlanra vágyik, megtalálta. További információért, megtekintés céljából keresse irodánkat. Vegye igénybe szolgáltatásainkat ! Ha hitelre, állami támogatásra van szüksége, abban is segítünk.
86 quadratmeter
346 quadratmeter
durchschnittlich
Einfamilienhaus
Ziegel
Erdwärme
n. a.
mit allem Komfort
neubau
n. a.
ebenerdig
n. a.
Finden Sie das perfekte Haus, Wohnung, Büro, Garage, Grundstück oder jede andere Art von Immobilien!
Die Immobilien.co.hu ist ein mitglied der Immobilien Gruppe.
Verkäufliche Immobilien in Ungarn - Immobilien.co.hu © 2026 Alle Rechte vorbehalten