Haus kaufen, Tápiószecső

Startseite » Haus kaufen, Tápiószecső » Haus kaufen, Tápiószecső

59 900 000 Ft

€158 014
Inserent Daten

Horváth Péter

Neue Nachricht
Die Nachricht hat mindestens 10 Zeichen zu sein.
Beschreibung

Übersetzter Text

Urtext
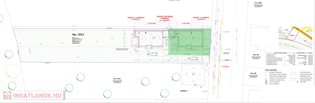
Új építésű ikerházak eladók Tápiószecsőn!

Tápiószecsőn, a Dózsa György út 49/A szám alatt, 1900 m²-es telken két külön bejáratú, új építésű ikerházfél kerül értékesítésre.

Utcafronti lakás: 350 m²-es telekkel – 59.900.000 Ft elkelt

Hátsó lakás: 1550 m²-es telekkel – 64.900.000 Ft

A tartószerkezeti falak Porotherm P30N+F téglából, betonkoszorúval, fa födémes tetőszerkezettel készülnek. A lábazat 10 cm polisztirol lépésálló, a homlokzatok 15cm-es EPS, a vízszintes födém 25 cm ásványgyapot szigeteléssel lesz ellátva.

Három rétegű üvegekkel szerelt, hat légkamrás műanyag thermo nyílászárók kerülnek beépítésre.

A minimális energiaigényt a megfelelő szigetelésen kívül a megújuló energiát használó gépészet is biztosítja. A fűtést levegő-víz hőszivattyús rendszer fogja végezni.

Burkolatok és felszereltség (alapárban választható):

-Hidegburkolat: 3.000 Ft/m²
-Melegburkolat: 3.000 Ft/m²
-Beltéri ajtók: 30.000 Ft/db
-Fürdőkád: 40.000 Ft
-Csaptelepek: 15.000 Ft/db

A megadott értékhatáron túli választás esetén a különbözet fizetendő.

Referenciák:
A kivitelező korábban Sülysápon is épített hasonló ingatlanokat, melyeket komoly érdeklődés esetén szívesen bemutatunk.

Tervezett átadás: 2026. első negyedév

A közelben megtalálható:

-Élelmiszer bolt 500m
-Vasútállomás 600m
-Általános Iskola 800m
-Orvosi rendelő, gyógyszertár 1000m

Érdeklődő ügyfeleinknek a tervdokumetációt és a műszaki tartalmat készséggel rendelkezésre bocsájtjuk.

INGYENES hitel tanácsadás, CSOK Plusz ügyintézés!
BANKFÜGGETLEN hitelcentrumunk az összes elérhető bank és hitelintézet ajánlatát versenyezteti az Ön kedvéért, ráadásul DÍJMENTESEN.

- Egyedi, bankfiókban nem elérhető kamat- és díjkedvezmények
- Hitelképesség vizsgálat
- Idő, energia és pénz megtakarítás
- Teljes hivatali ügyintézés

Amennyiben hirdetésem felkeltette az érdeklődését vagy egyéb információra van szüksége hívjon bizalommal!

Haus Daten

95 quadratmeter

1 550 000 quadratmeter

sehr gut

Doppelhaushälfte

Ziegel

Erdwärme

n. a.

mit allem Komfort

neubau

n. a.

ebenerdig

n. a.

Karte