Übersetzter Text
                                                    
                            Urtext
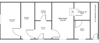
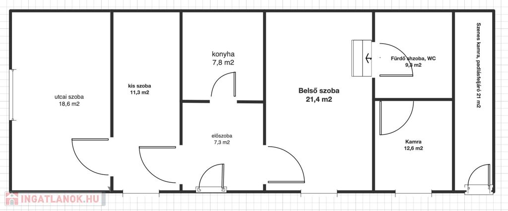
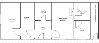
                            Tarcal központjában, a Tokaji borvídék szívében, a híres Andrássy kúria közelében, örök panorámás kilátással, a Világörökség részét képező bor út mentén, eladásra kínálunk egy 110 nm-es 3 szobás, külön konyhás, fürdőszobás, terméskőből épült gáz fűtéses családi házat, 900 nm-es telekkel, azonnal költözhetően.
Az ingatlan Főbb jellemzői: 
110 nm-es terméskő szerkezetű, tágas családi ház
3 tágas szoba, fűrdőszoba
kényelmes elrendezés, jól kihasználható terek
nyugodt, barátságos környezet,
közvetlen közel a borút mentán, Andrássy kastélytól pár percre
kíváló közlekedési lehetőségek
kultúrális és történelmi nevezetességek, borászok a közelben
A családi ház alatt húzódó Rákóczi korabeli pince rendszer miatt, az ingatlan befektetésre is kiválóan alkalmas (a pince rendszer feltárása és bejáratának a kialakítása a leendő tulajdonosra vár). A ház ideális választás családoknak, akik a természetet, a történelmet és a kúltúrát egyszerre szeretnék élvezni. Ne hagyja ki ezt a remek lehetőséget, hogy az otthona egy varázslatos borvidéken legyen . Kérem keressenek kérdéseikkel bizalommal. Az ingatlan azonosítója: 97203Érdeklődni: +36304092510 Az ingatlan azonosítója: 97203 Érdeklődni: +36304092510                        
110 quadratmeter
900 quadratmeter
gut
Einfamilienhaus
Ziegel
mit Konvektor
n. a.
n. a.
n. a.
n. a.
n. a.
n. a.
Finden Sie das perfekte Haus, Wohnung, Büro, Garage, Grundstück oder jede andere Art von Immobilien!
Die Immobilien.co.hu ist ein mitglied der Immobilien Gruppe.
Verkäufliche Immobilien in Ungarn - Immobilien.co.hu © 2025 Alle Rechte vorbehalten