Haus kaufen, Vasad

Startseite » Haus kaufen, Vasad » Haus kaufen, Vasad

71 900 000 Ft

€186 559
Inserent Daten

Kaufmann Norbert

Neue Nachricht
Die Nachricht hat mindestens 10 Zeichen zu sein.
Beschreibung

Übersetzter Text

Urtext
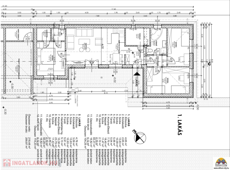
Modern ikerházak Vasad zöldövezetében – Budapest közvetlen közelében!

Eladó új építésű, kulcsrakész ikerházak Vasad legcsendesebb, forgalomtól mentes utcájában – egy zöldövezeti környezetben, ahol a nyugalom és a modern életstílus találkozik.
Az ingatlanok között fedett autóbeálló épül, így nincs közös fal, garantálva a teljes privát szférát és zajmentes életteret.

Otthon, amely minden igényt kielégít

Tágas, amerikai konyhás nappali

Teraszkapcsolatos nagy fedett terasz

Három külön hálószoba, az egyik saját gardróbbal

Két fürdőszoba – zuhanyzós és fürdőkádas kivitelben

Háztartási helyiség, saját garázs és tároló

Fenntarthatóság és energiahatékonyság

Korszerű hőszivattyús fűtés padlófűtéssel – alacsony rezsiköltség

ARISTON 100 literes okos vízmelegítő, amely igazodik a felhasználáshoz

Inverteres hűtő-fűtő klíma minden helyiségben

Kiemelkedő hőszigetelés: 12 cm aljzat, 10 cm grafitos homlokzat, 30 cm tetőfödém

Energiaosztály: AA – alkalmas Zöld Hitelre, CSOK Pluszra vagy Otthon Start programra

Haus Daten

103 quadratmeter

310 quadratmeter

sehr gut

Doppelhaushälfte

n. a.

n. a.

n. a.

n. a.

n. a.

n. a.

1 Ebene

n. a.

Bilder