Haus kaufen, Villány

Startseite » Haus kaufen, Villány » Haus kaufen, Villány

62 000 000 Ft

€160 872
Inserent Daten

Doktor Dominika

Neue Nachricht
Die Nachricht hat mindestens 10 Zeichen zu sein.
Beschreibung

Übersetzter Text

Urtext
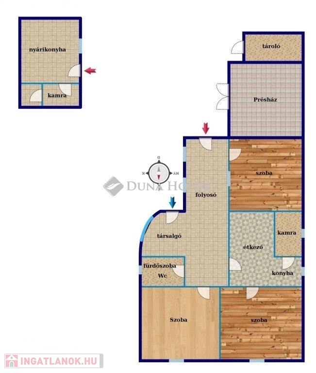
Villány belvárosában, a történelmi pincesorral szemben, 626 m2-es telken elhelyezkedő 110 m2-es családi ház gazdasági épületekkel eladó.
A ház vegyes falazatú, részben szigetelt. Az ingatlan 3 szobája külön bejáratúak, külön étkezővel és fürdőszobával. Ablakai hőszigetelt fa nyílászárókkal, redőnnyel felszereltek.
A telken található további épületek:
- nyári konyha, ami kb. 20 m2-es
- állattartásra alkalmas gazdasági épületek
- garázs 16,4nm- góré
- présház pincével (kétsoros, 7 méteres)

25 méteres ásott kút található a telken. A lakóház melegét gázfűtés, villanyfűtés, valamint az étkezőben lévő vas kandalló biztosítja.

Az ingatlan belső felújítást követően kényelmes lakhatást biztosít több gyermekes családok részére, továbbá kiváló befektetési lehetőséget is kínál apartmanok kialakítására.

Megtekintéssel kapcsolatban várom hívását!

Haus Daten

120 quadratmeter

625 quadratmeter

durchschnittlich

Einfamilienhaus

gemischt

Umlaufheizung

Gasheizung

n. a.

älter als 50

n. a.

ebenerdig

n. a.

Karte