Übersetzter Text
Entdecken Sie diese außergewöhnliche Gelegenheit in Vízvár, Komitat Somogy. Hier wartet ein 100 m² großes, renovierungsbedürftiges Haus auf seinen neuen Besitzer. Die Lage des Anwesens ist ideal für alle, die in einer ruhigen, friedlichen Umgebung wohnen und gleichzeitig die Nähe zur Natur und den Charme des Landlebens genießen möchten. Das Haus verfügt über drei geräumige Zimmer, die Ihnen die Möglichkeit bieten, Ihr Zuhause ganz nach Ihrem Geschmack zu gestalten. Das 2640 m² große Grundstück bietet viel Platz für Freizeitaktivitäten, Gartenarbeit oder die Anlage eines kleinen Obstgartens. Das Haus wird mit einem Kachelofen beheizt, der nicht nur in den Wintermonaten für angenehme Wärme sorgt, sondern auch zum traditionellen ländlichen Lebensstil passt. Während der Renovierung haben Sie die Möglichkeit, das Anwesen nach den neuesten Trends und Ihren eigenen Vorstellungen umzugestalten und es in ein einzigartiges Zuhause zu verwandeln. Die Gegend ist ruhig, sicher und ideal für Familien oder Einzelpersonen, die Ruhe und Erholung suchen. Vízvár bietet zudem eine gute Verkehrsanbindung und ist leicht vom Stadtzentrum mit Geschäften, Restaurants und weiteren Dienstleistungen erreichbar. Zu den Transportmöglichkeiten gehört der örtliche Busservice, der Sie schnell und bequem in die umliegenden Siedlungen bringt, sodass das tägliche Pendeln kein Problem darstellt. Die nahegelegenen Wälder und Wiesen eignen sich hervorragend zum Wandern, Laufen oder einfach zum Genießen der Natur. Die freundliche Gemeinde von Vízvár und die Freundlichkeit der Bewohner runden das Wohnerlebnis hier ab. Diese Immobilie bietet nicht nur ein neues Zuhause, sondern auch eine hervorragende Investitionsmöglichkeit, bei der durch eine Renovierung eine deutliche Wertsteigerung erzielt werden kann. Bei Fragen zur Immobilie oder zur Umgebung stehen wir Ihnen gerne zur Verfügung. Wir helfen Ihnen gerne, Ihr Traumhaus oder Ihre Trauminvestition zu finden. Der Immobilienmarkt verändert sich ständig, daher lohnt es sich, die Chancen zu nutzen.
Urtext
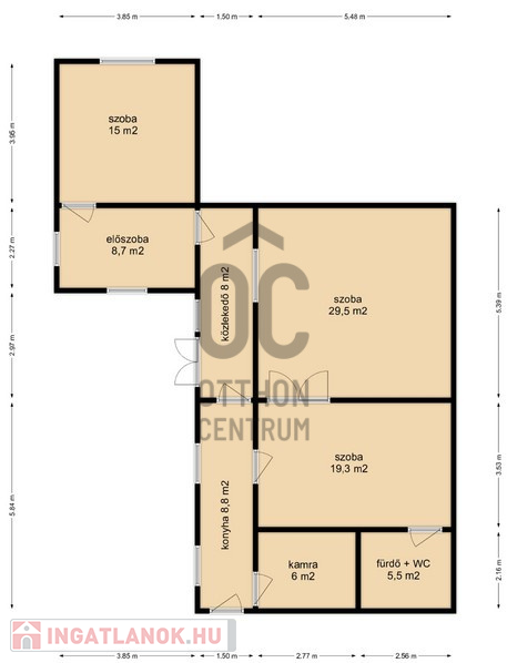
Fedezze fel ezt a kivételes lehetőséget Somogy vármegyében, Vízváron, ahol egy 100 nm alapterületű, felújítandó ház várja új tulajdonosát. Az ingatlan elhelyezkedése ideális választás mindazok számára, akik csendes, nyugodt környezetben szeretnének élni, miközben a természet közelsége és a vidéki élet varázsa minden nap kíséri őket. A ház három tágas szobával rendelkezik, amelyek remek lehetőséget kínálnak arra, hogy saját ízlésének megfelelően alakítsa ki otthonát.
A telek mérete 2640 nm, amely bőséges teret biztosít a szabadidős tevékenységekhez, kertészkedéshez vagy akár egy kis gyümölcsös kialakításához is. A ház fűtése cserépkályhával megoldott, amely nemcsak kellemes meleget biztosít a téli hónapokban, hanem a hagyományos vidéki életstílus részét is képezi.
A felújítás során lehetősége nyílik arra, hogy a legújabb trendeknek és saját elképzeléseinek megfelelően alakítsa át az ingatlant, így egyedi otthont varázsolhat belőle.
A környék csendes, biztonságos, ideális családok, illetve nyugalomra vágyó egyének számára. Vízvár közlekedési lehetőségei is kedvezőek, hiszen könnyen megközelíthető a város központja, ahol boltok, éttermek és egyéb szolgáltatások várják. A közlekedési lehetőségek között megtalálható a helyi buszjárat, amely gyorsan és kényelmesen eljuttatja Önt a környező településekre, így a napi ingázás sem jelent problémát.
A közeli erdők és rétek kiválóan alkalmasak kirándulásra, futásra vagy egyszerűen csak a természet élvezetére. Vízvár barátságos közössége és a környékbeli lakók kedvessége még inkább fokozza az itt élés élményét. Ez az ingatlan nemcsak egy új otthon lehet, hanem egy remek befektetési lehetőség is, amelyben a felújítás során jelentős értéknövekedés érhető el.
Kérjük, ne habozzon, ha bármilyen kérdése van az ingatlannal vagy a környékkel kapcsolatban. Bizalommal kereshet minket, hiszen célunk, hogy segítsünk Önnek megtalálni álmai otthonát vagy befektetését. Az ingatlanpiac folyamatosan változik, így érdemes lépéseket tenni a lehetőségek kihasználása érdekében.
100 quadratmeter
2 640 quadratmeter
sanierungsbedürftig
Einfamilienhaus
Ziegel
sonstige
n. a.
n. a.
älter als 50
n. a.
ebenerdig
n. a.
Finden Sie das perfekte Haus, Wohnung, Büro, Garage, Grundstück oder jede andere Art von Immobilien!
Die Immobilien.co.hu ist ein mitglied der Immobilien Gruppe.
Verkäufliche Immobilien in Ungarn - Immobilien.co.hu © 2026 Alle Rechte vorbehalten