Wohnung kaufen, Balatonlelle

Startseite » Wohnung kaufen, Balatonlelle » Wohnung kaufen, Balatonlelle

132 189 750 Ft

€346 255
Inserent Daten

Nívó Ingatlanforgalmi Szakértői Iroda

Neue Nachricht
Die Nachricht hat mindestens 10 Zeichen zu sein.
Beschreibung

Übersetzter Text

Urtext
Balatonlellén impozáns, vízparti környezetben, új építésű, kulcsrakész, luxus lakások eladóak.

Balatonlelle a déli part kiemelkedő helyszíne, amely egész évben várja az idelátogatókat. A lakások elhelyezkedéséből adódóan kiválóan alkalmasak nyaraló és állandó lakhatásra illetve értékálló befektetésnek is. A kivitelező partnercége igény szerint vállalja a lakás hozamtermelő üzemeltetését is, teljes szolgáltatási csomaggal.

A terület 5336 m2-es, bekerített, ősfás, parkosított telek, balatoni panorámával. Az itt lakók kényelmét felnőtt-és gyermekmedence is szolgálja.

Az épület 3 szintes (földszint + 2 emelet), két szárnyépületből álló apartmanház, 29 db lakással illetve 41 db felszíni parkolóhellyel.

Az épület tervezésénél a funkcionalitás mellett fő szempontok voltak az egyszerűség, az elegancia, a harmónia és a modernitás, ezek mellett a kedvező megközelítés, tájolási és panoráma adottságok kihasználása is.

Az ingatlan téglából épült, szigetelt, lapos tetős épület. Fűtését, hűtését és meleg víz ellátását 6 db Remeha levegő-víz hősszivattyú biztosítja, indirekt tárolón keresztül, padló-és mennyezeti fűtéssel illetve mennyezeti hűtéssel, helyiségenkénti vezérléssel, egyedi mérős elszámolással. A+ energia besorolássál rendelkezik.

Az ingatlanberuházó/kivitelező számos referenciával, maximalizmussal rendelkezik. Céljuk, hogy a legmagasabb minőségben kerüljenek átadásra az ingatlanok. Teljes önerőből, külső finanszírozás nélkül épít, 100%-ban magyar tulajdonú vállalkozás.

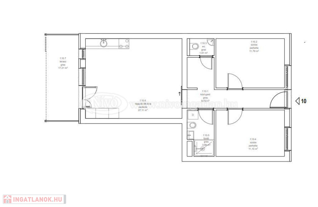
A hirdetésben szereplő konkrét lakás:
- földszinti,
- 10. számú lakás,
- alapterület: 65,32 m2 + 17,21 m2 terasz + 21,25 m2 kert,
- 1+2 szobás,
- bruttó, kulcsrakész ár: 132.189.750 Ft (5% ÁFA-tartalom).

A parkoló darab ára: bruttó 3.810.000 Ft (27% ÁFA-tartalom).

Érdeklődő Ügyfeleink kérésére alaprajzot, műszaki leírást, egyéb információkat küldünk, de irodánkban is szívesen állunk rendelkezésükre részletes tájékoztató megbeszélésen.

A helyszíni bejárást leszervezzük, időpont egyeztetéssel.

A hirdetésben szereplő információk tájékoztató jellegűek, a változtatás jogát a Tulajdonos fenntartja.


Az ingatlan megtekintése irodánkkal előre egyeztetett időpontban történik. Szívesen állunk rendelkezésre!

Keresünk és kínálunk eladó és bérbeadó ingatlanokat, albérleteket Veszprém, Balaton, Bakony, Káli-medence régióban.
Ügyeleti telefonszámunk: .
A Nívó Ingatlanforgalmi Szakértői Iroda teljes eladó és bérbeadó ingatlan és albérlet kínálatát megtekintheti a oldalunkon.

Irodai azonosító kód: N4703 Nívó ingatlan: N4703

Wohnung Daten

n. a.

n. a.

sonstige

n. a.

n. a.

1-5 jährig

65 quadratmeter

Mehrfamilienhaus

n. a.

n. a.

n. a.