Wohnung kaufen, Budapest IX. Bezirk

Startseite » Wohnung kaufen, Budapest IX. Bezirk » Wohnung kaufen, Budapest IX. Bezirk

95 000 000 Ft

€245 079
Inserent Daten

Szalontai Zsuzsanna

Neue Nachricht
Die Nachricht hat mindestens 10 Zeichen zu sein.
Beschreibung

Übersetzter Text

Urtext
IDEÁLIS VÁLASZTÁS AZ ÚJ 3 %-OS OTTHON START HITELHEZ!!!

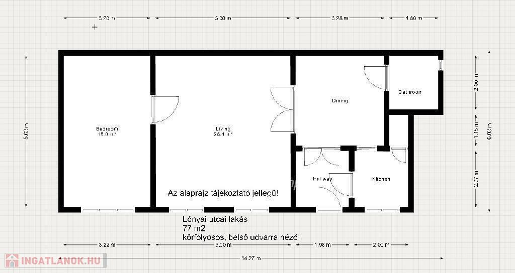
Eladó 77 m2 lakás a Belső-Ferencvárosban, a 9. kerületben!

Kiváló lehetőség vár rád a Lónyay utcában!

A belső körfolyosós társasház 4. emeletén található délkeleti fekvésű lakás jelenleg két szobával, hallal, fürdőszobával és egy konyhával, illetve spájzzal rendelkezik.
A mellékelt átalakítási terv szerint kialakítható egy szülői és két kisebb hálószoba, illetve egy amerikai konyhás nappali. A tervezett felújítás jelentősen felértékeli az ingatlant. Ugyanakkor két külön lakás is kialakítható belőle!

A lakás mindössze egy utcára található a Duna parttól, és a Ráday utcában található vigalmi negyedtől, ahol népszerű éttermek, kávézók, és egyéb kikapcsolódási lehetőségek is vannak.

Közvetlen közelben oktatási intézmények sokasága (ELTE, Corvinus, SOTE, Pázmány Péter Katolikus Egyetem, BME, Budapest Music Center).

A Nagy Vásárcsarnok, a Nehru park, a Goethe Intézet, a Szabó Ervin könyvtár és a Bálna 5 perc, a Gellérthegy pedig 20 perc sétával érhető el.

Tömegközlekedés szempontjából is tökéletes választás, hiszen a közvetlen közelben van a 15-ös, a 115-ös buszok, illetve a 979/A éjszakai járat megállója, a 83-as troli, a 2-es villamos, a 3-as és 4-es metrók pedig séta távolságra.

Parkolni az utcán, közterületen lehetséges. A parkolás a helyi bejelentett lakosoknak kedvezményes.

Az ingatlan tehermentes, kiürített állapotban, azonnal birtokba vehető.

Köszönöm megtisztelő figyelmét. Amennyiben jelenlegi ingatlana értékesítésében is segítségére lehetek,
illetve az OTP teljes ingatlankínálatával kapcsolatban kérem forduljon hozzám bizalommal.
Az OTP Ingatlanpont, mint egyetlen közvetlen banki hátterű ingatlanközvetítő társaság
teljes körű ügyintézéssel áll eladóik és vevőik rendelkezésére!
Piaci és kedvezményes hitel- valamint lízingkonstrukciókat kínálunk mint
lakásvásárlási hitel, szabad felhasználású hitel, babaváró hitel,
CSOK Plusz-intézés, Otthonfelújítási Támogatás, egyéb felújítási hitelek.
Az adásvételi szerződés megkötéséhez igény szerint megbízható ügyvédi
közreműködést is biztosítunk.
Ha felkeltettem érdeklődését,
ne habozzon keresni a hét bármely napján reggel 9 és este 9 között.
Ügyfeleinknek minden szolgáltatásunk (valóban) díjmentes.

WE SPEAK ENGLISH, FEEL FREE TO CALL ME!


Kérem hivatkozzon az alábbi referenciaszámra: M311151

Wohnung Daten

4. Etage

Ziegel

mit Konvektor

sanierungsbedürftig

mit allem Komfort

älter als 50

77 quadratmeter

n. a.

n. a.

n. a.

im Garten

Karte