Wohnung kaufen, Budapest XVII. Bezirk

Startseite » Wohnung kaufen, Budapest XVII. Bezirk » Wohnung kaufen, Budapest XVII. Bezirk

82 800 000 Ft

€216 420
Inserent Daten

Horváth Zoltán

Neue Nachricht
Die Nachricht hat mindestens 10 Zeichen zu sein.
Beschreibung

Übersetzter Text

Urtext

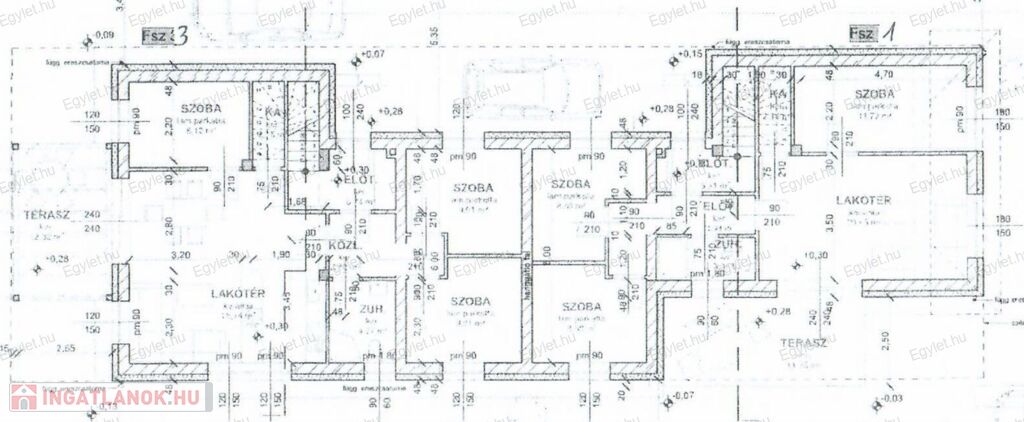
Rákoshegyen kínálunk eladásra egy új építésű, földszinti, KERTKAPCSOLATOS, 60 nm-es, 14 nm-es terasszal, amerikai konyhás nappalis, + 3 hálószobás lakást.

 

A ház négy lakásból áll privát kertekkel.

 

A földszinti lakásokhoz KERTKAPCSOLATOS terasz tartozik, míg az emeletiekhez külön elválasztott privát kertrész.

 

Minőségi alapanyagokból, igényes kivitelezés jellemzi a projektet, ahol a biztonság és a kényelem mellett az energiatakarékosság volt a fő szempont. A lakás átgondolt tervezésének köszönhetően kényelmes, otthonos, szellős, viszont ugyanakkor bővelkedik a praktikus megoldásokban.

 

A kulcsra kész ár tartalmazza az elektromos redőny előkészítést, három rétegű nyílászárókat, riasztó előkészítést, kaputelefon és motoros kapu kiépítést. A gépjárművekkel az ingatlanhoz tartozó térkövezett beállón lehet biztonságosan parkolni.  

 

Helyiség lista:

- Előtér

- Közlekedő

- Három hálószoba

- Fürdőszoba

- Amerikai konyha,

- Étkező

- Nappali 

- Terasz

- Gépjármű beálló

 

A privát telek 59 nm-es.

 

Az ingatlan fűtéséről, valamint a használati melegvíz ellátásáról egy modern, energia takarékos, kondenzációs gázcirkó gondoskodik.

Az összes közmű mérőórája minden lakáshoz egyénileg.

Az ingatlan akár azonnal birtokba vehető!

 

Közlekedése kiváló, busszal az Örs Vezér tér, vagy vonattal a Keleti pu. rövid idő alatt megközelíthető. Gépjárművel az M0-ás szintén könnyedén, pár perc alatt elérhető.

 

Hitel, CSOK igénylésben díjmentes ügyintézéssel állunk rendelkezésére! Nálunk kiválaszthatja az Ön számára legkedvezőbb ajánlatot.



Várom megtisztelő érdeklődésüket.

Wohnung Daten

n. a.

Ziegel

Umlaufheizung

sehr gut

mit allem Komfort

Neubau

60 quadratmeter

n. a.

n. a.

n. a.

n. a.