Wohnung kaufen, Szeged

Startseite » Wohnung kaufen, Szeged » Wohnung kaufen, Szeged

51 900 000 Ft

€132 368
Inserent Daten

Dr. Rozgonyi Ákos

Neue Nachricht
Die Nachricht hat mindestens 10 Zeichen zu sein.
Beschreibung

Übersetzter Text

Urtext
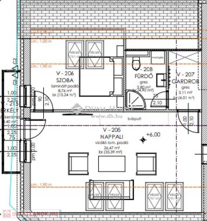
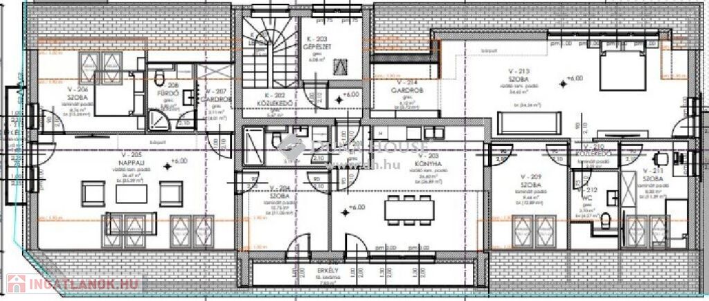
MODERN, KULCSRAKÉSZ, ENERGIAHATÉKONY OTTHONOK!

Szeged-Móraváros, Petőfi Sándor sugárút vonzáskörzetében 5 lakásos projekt épül.
A modern, 3 szintes épület ( fsz., 1.em., 2.em. (tetőtér) ) lakásai változatos méretben készülnek, erkéllyel rendelkeznek.

Várható kulcsrakész átadás: 2025.10. hó

Nyugodt környezet
Energiahatékony megoldások


Minden további részlettel kapcsolatban várom hívását! Forduljon Hozzám bizalommal!

Wohnung Daten

2. Etage

Ziegel

n. a.

im Bau

n. a.

Neubau

43 quadratmeter

n. a.

n. a.

n. a.

n. a.

Karte