Übersetzter Text
Urtext
Otthon Veszprém egyik kedvelt környékén, a Bakonyalja városrészen
Ha olyan lakást keresel, ami családalapításhoz ideális, elég tágas a kényelmes mindennapokhoz, ugyanakkor befektetésként is stabil választás, akkor ezt az ingatlant mindenképp érdemes megnézned.
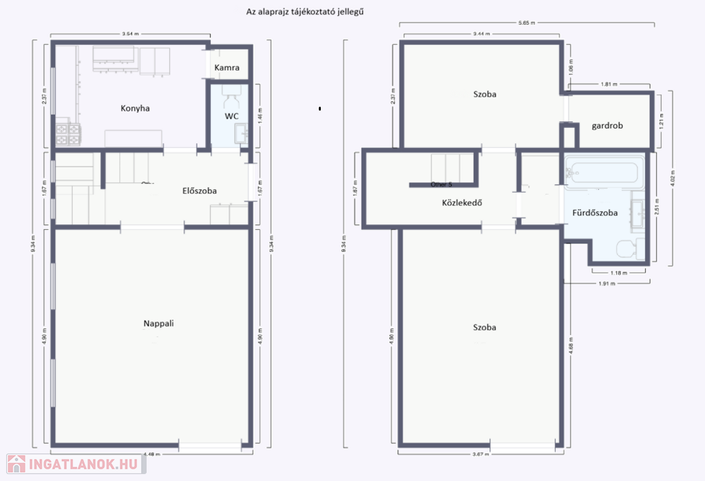
Egy rendezett társasház 3. emeletén található ez a 71 m²-es, téglaépítésű, belső kétszintes lakás, amely 2003–2004-ben épült, és azóta is folyamatosan karbantartott, jó állapotú.
A lakás nyugati tájolású, így világos, kellemes élettereket biztosít a nap nagy részében.
Az otthon 1 nappalival és 2 kisebb szobával rendelkezik, elosztása kifejezetten praktikus.
Az alsó szinten előszoba fogad, innen nyílik a konyha kamrával, egy külön WC, valamint a tágas nappali, amely nagy ablakokkal és franciaerkéllyel kapcsolódik a külső térhez.
A felső szinten egy előtérből érhető el egy nagyobb szoba franciaerkéllyel, egy kisebb szoba gardróbbal, valamint egy nagy méretű, kádas fürdőszoba, amely kényelmes megoldást nyújt akár egy család számára is.
A lakás műanyag nyílászárókkal felszerelt, redőnyökkel ellátva.
A fűtésről saját gázkazán gondoskodik radiátoros hőleadással.
Klíma nincs, azonban a jó tájolás és a kialakítás miatt a lakás jól szellőztethető.
A biztonságról beépített riasztórendszer gondoskodik, a tárolást pedig egy közös alagsori tároló segíti. Parkolás a ház előtt ingyenesen megoldott.
2010-ben amikor mostani tulajdonosai beköltöztek, sor került a burkolatok cseréjére, valamint méretre gyártott bútorok beépítésre.
A LAKÁS AZONNAL KÖLTÖZHETŐ.
Fenntartása kifejezetten kedvező: a gázköltség az elmúlt két év átlaga alapján havi 7.000–8.200 Ft, a közös költség 11.000 Ft, így a lakás gazdaságosan üzemeltethető, ami befektetők számára is különösen vonzó.
A környék Veszprém egyik kedvelt része, ahol iskola, óvoda, üzletek könnyen elérhetők. A belváros és a buszpályaudvar néhány perces autóútra található, a vasútállomás pedig mindössze 10 perc sétával megközelíthető. A környéken sok a zöldterület, parkok és játszóterek teszik igazán családbaráttá a környezetet.
Az ingatlan megvásárlásához Otthon Start és CSOK Plusz hitel is igénybe vehető.
Ez a lakás tökéletes választás, ha hosszú távra tervezel, nagyobb élettérre vágysz, vagy egy biztos, jól kiadható befektetést keresel.
Ne gondolkodj sokáig – nézd meg személyesen a hét bármelyik napján, és találd meg benne az új otthonod!
Szeretettel várom hívásod!
Dr. Serhalné Zsiray Tünde
06 20 258 5752
Dream-Ing
Álomból Otthont!
3. Etage
Ziegel
Umlaufheizung
gut
mit allem Komfort
n. a.
71 quadratmeter
n. a.
n. a.
n. a.
n. a.
Finden Sie das perfekte Haus, Wohnung, Büro, Garage, Grundstück oder jede andere Art von Immobilien!
Die Immobilien.co.hu ist ein mitglied der Immobilien Gruppe.
Verkäufliche Immobilien in Ungarn - Immobilien.co.hu © 2026 Alle Rechte vorbehalten